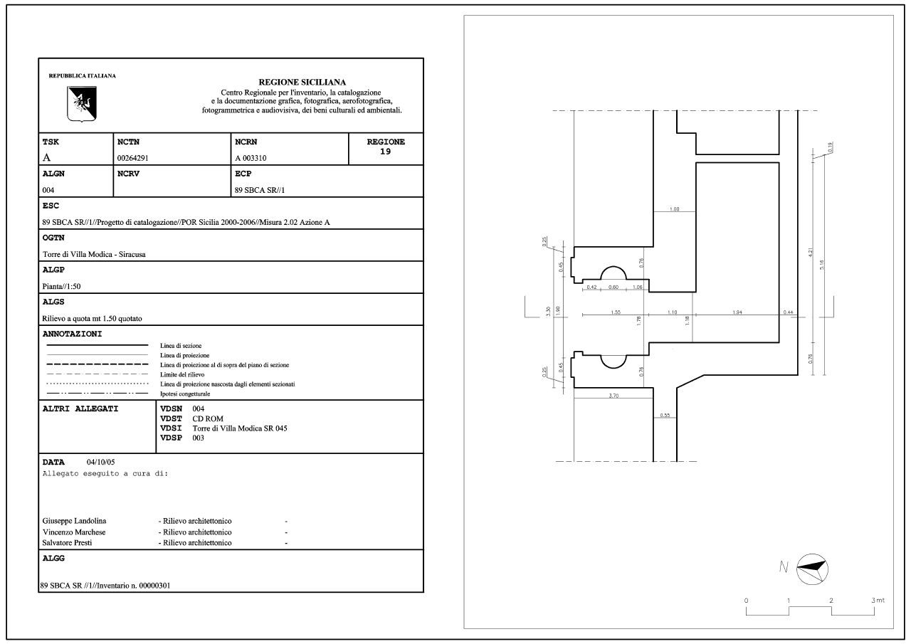
Torre di Villa Modica
Siracusa,
1766/00/00 - 1768/00/00
Alì Luciano (1736/00/00)
1736/00/00
Edificio in muratura continua di pietrame con cantonali in blocchi squadrati di pietra calcarea; volte a botte al piano terra e primo, copertura piana
- OGGETTO torre-di avvistamento
- AMBITO CULTURALE Architettura Barocca
-
ATTRIBUZIONI
Alì Luciano (1736/00/00): progetto
- LOCALIZZAZIONE Siracusa (SR) - Sicilia , ITALIA
- TIPOLOGIA SCHEDA Architettura
-
CONDIZIONE GIURIDICA
proprietà privata
- CODICE DI CATALOGO NAZIONALE 1900264291
- ENTE COMPETENTE PER LA TUTELA Centro Regionale per l'Inventario e la Catalogazione
- ENTE SCHEDATORE Centro Regionale per l'Inventario e la Catalogazione
- DATA DI COMPILAZIONE 2004
-
DATA DI AGGIORNAMENTO
2021
- LICENZA METADATI CC-BY 4.0