impianto termale
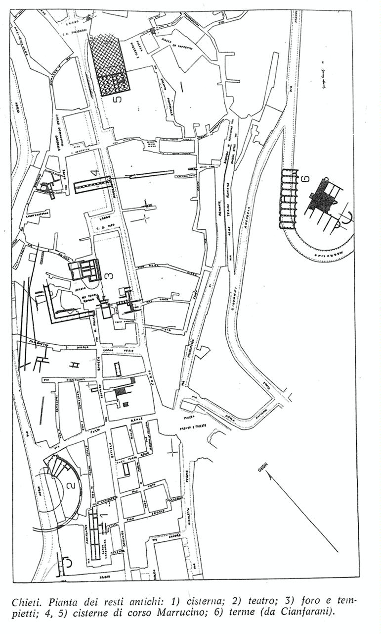
I resti dell'edificio termale sono conservati sulle pendici del lato orientale della città. L'edificio termale sorge al di sotto della Civitella, ad un livello di 50 m piu basso. A nord-ovest del complesso termale, è situata un'imponente cisterna, posta al di sotto della via Marruccina. Sono nove grandi ambienti affiancati, lunghi complessivamente 60 m, larghi poco più di 14 m, ricavati in gran parte entro il colle e coperti da volte a botte. Davanti alla cisterna un terrapieno triangolare, al centro del quale una scala permette di scendere al livello delle terme. Da un corridoio trasversale (m 42 x 6) in mosaico con crocette bianche e nere si giunge al centro in un ingresso colonnato. L'ngresso permette di accedere ad un ambiente rettangolare (m 15x12,50) con pavimento a mosaico bianco e nero, con quadrati al centro dei quali sono alternati una crocetta e un quadrifoglio. Al centro del pavimento un quadro che rappresenta un tridente con un delfino, affiancato da due ippocampi. Segue un ambiente con vaschette semicircolari e vasca semicircolare nel fondo; a destra ambienti rettangolari, con ipocausto su suspensurae
- OGGETTO impianto termale
- LOCALIZZAZIONE Chieti (CH) - Abruzzo , ITALIA
- TIPOLOGIA SCHEDA Complessi archeologici
- INTERPRETAZIONE Il complesso termale è databile intorno alla metà del I secolo d.C
-
CONDIZIONE GIURIDICA
proprietà Stato
- CODICE DI CATALOGO NAZIONALE 1300301090
- ENTE COMPETENTE PER LA TUTELA Soprintendenza Archeologia, belle arti e paesaggio dell'Abruzzo con esclusione della citta' dell'Aquila e dei comuni del cratere
- ENTE SCHEDATORE Soprintendenza Archeologia, belle arti e paesaggio dell'Abruzzo con esclusione della citta' dell'Aquila e dei comuni del cratere
- DATA DI COMPILAZIONE 2018
-
DOCUMENTAZIONE GRAFICA
planimetria (1)
planimetria (2)
- LICENZA METADATI CC-BY 4.0