Catalogo generale dei Beni Culturali

Cat-IA

ricerca avanzata
catalogo • esito ricerca
40 risultati

Bosio Pietro (1751-1800/ 1855)

1751-1800/ 1855
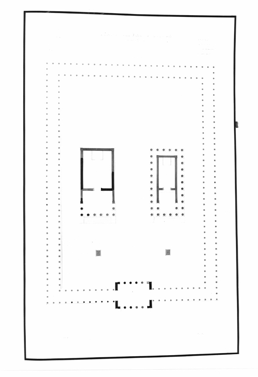
pianta, architettura: progetto di restauro dei Portici di Ottavia e del Tempio di Giove e Giunone (disegno, opera isolata) di Bosio Pietro (sec. XIX)
pianta, architettura: progetto di restauro dei Portici di Ottavia e del Tempio di Giove e Giunone (disegno, opera isolata) di Bosio Pietro (sec. XIX)
alzato, architettura: progetto di restauro dei Portici di Ottavia e del Tempio di Giove e Giunone (disegno, opera isolata) di Bosio Pietro (sec. XIX)
alzato, architettura: progetto di restauro dei Portici di Ottavia e del Tempio di Giove e Giunone (disegno, opera isolata) di Bosio Pietro (sec. XIX)
alzato, architettura: progetto di restauro dei Portici di Ottavia e del Tempio di Giove e Giunone (disegno, opera isolata) di Bosio Pietro (sec. XIX)
alzato, architettura: progetto di restauro dei Portici di Ottavia e del Tempio di Giove e Giunone (disegno, opera isolata) di Bosio Pietro (sec. XIX)
piante, sezioni, alzati, architettura: progetto di restauro dei Portici di Ottavia e del Tempio di Giove e Giunone (disegno, opera isolata) di Bosio Pietro (sec. XIX)
piante, sezioni, alzati, architettura: progetto di restauro dei Portici di Ottavia e del Tempio di Giove e Giunone (disegno, opera isolata) di Bosio Pietro (sec. XIX)
piante, sezioni e prospetti, architettura: progetto di restauro dei Portici di Ottavia e del Tempio di Giove e Giunone (disegno, opera isolata) di Bosio Pietro (sec. XIX)
piante, sezioni e prospetti, architettura: progetto di restauro dei Portici di Ottavia e del Tempio di Giove e Giunone (disegno, opera isolata) di Bosio Pietro (sec. XIX)
sezioni e profili, architettura: progetto di restauro dei Portici di Ottavia e del Tempio di Giove e Giunone (disegno, opera isolata) di Bosio Pietro (sec. XIX)
sezioni e profili, architettura: progetto di restauro dei Portici di Ottavia e del Tempio di Giove e Giunone (disegno, opera isolata) di Bosio Pietro (sec. XIX)
alzati, sezioni e profili, architettura: progetto di restauro dei Portici di Ottavia e del Tempio di Giove e Giunone (disegno, opera isolata) di Bosio Pietro (sec. XIX)
alzati, sezioni e profili, architettura: progetto di restauro dei Portici di Ottavia e del Tempio di Giove e Giunone (disegno, opera isolata) di Bosio Pietro (sec. XIX)
pianta, architettura: progetto per un Lazzaretto marittimo (disegno, opera isolata) di Bosio Pietro (sec. XIX)
pianta, architettura: progetto per un Lazzaretto marittimo (disegno, opera isolata) di Bosio Pietro (sec. XIX)
prospetto, architettura: progetto per un Lazzaretto marittimo (disegno, opera isolata) di Bosio Pietro (sec. XIX)
prospetto, architettura: progetto per un Lazzaretto marittimo (disegno, opera isolata) di Bosio Pietro (sec. XIX)
pianta, architettura: progetto per un Lazzaretto marittimo (disegno, opera isolata) di Bosio Pietro (sec. XIX)
pianta, architettura: progetto per un Lazzaretto marittimo (disegno, opera isolata) di Bosio Pietro (sec. XIX)
prospetto, architettura: progetto per un Lazzaretto marittimo (disegno, opera isolata) di Bosio Pietro (sec. XIX)
prospetto, architettura: progetto per un Lazzaretto marittimo (disegno, opera isolata) di Bosio Pietro (sec. XIX)
spaccato, architettura: progetto per un Lazzaretto marittimo (disegno, opera isolata) di Bosio Pietro (sec. XIX)
spaccato, architettura: progetto per un Lazzaretto marittimo (disegno, opera isolata) di Bosio Pietro (sec. XIX)
Next →
filtri

filtra ricerca avanzata >

categoria
  • Bene mobile40
tipologia
  • Disegni40
regione
  • Lombardia40
fonte dei dati
  • Catalogo ICCD 40
luogo della cultura
  • Pinacoteca di Brera40
  • Palazzo di Brera3

RIMANI AGGIORNATO

SEGUICI

Iscriviti alla nostra newsletter >
facebooktwitter youtube instagram
Logo MIbactlogo ICCD
iccd.cultura.gov.it dati.cultura.gov.it scenedaunpatrimonio.cultura.gov.it Per catalogare
Progetto
Termini d'uso
Contatti
Credits