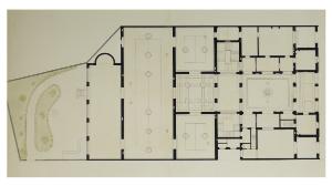
Milano, Palazzo della Permanente: Progetto definitivo, pianta piano terra
disegno
ca. 1884 - ca. 1885
Beltrami, Luca (1854-1933)
1854-1933
- FONTE DEI DATI Regione Lombardia
- OGGETTO disegno
-
MATERIA E TECNICA
cartoncino/ grafite/ penna e inchiostro/ acquerello
-
ATTRIBUZIONI
Beltrami, Luca (1854-1933)
- LUOGO DI CONSERVAZIONE Civiche Raccolte Grafiche e Fotografiche del Castello Sforzesco
- LOCALIZZAZIONE Castello Sforzesco - complesso
- INDIRIZZO Piazza Castello, Milano (MI)
- TIPOLOGIA SCHEDA Opere/oggetti d'arte
-
CONDIZIONE GIURIDICA
proprietà Ente pubblico territoriale
- ENTE SCHEDATORE R03/ Gabinetto dei Disegni
- LICENZA METADATI CC-BY 4.0