Case Ficocelli-Franco-Vignone
Sepino,
post fine XIX - ante seconda metà-XX
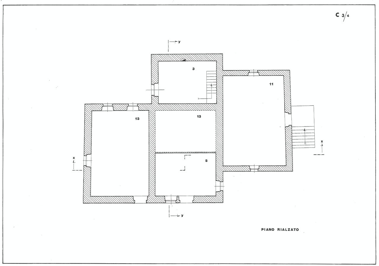
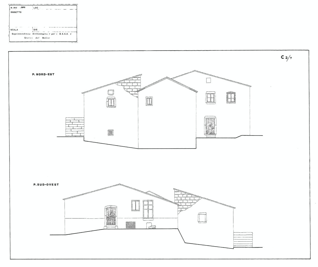
L’edificio è composto da più volumi che si sviluppano su due piani oltre il sottotetto con solai in parte in legno ed in parte in ferro e laterizi. La copertura è a due falde con struttura in legno con manto in coppi. Il corpo a Nord-Est è servito da una scala esterna in pietra. Le facciate non presentano elementi architettonici di rilievo. Nel complesso due edifici rurali, due unità abitative, un magazzino ed una rimessa
- OGGETTO complesso edilizio-rurale
- AMBITO CULTURALE Maestranze Ottocentesche
- LOCALIZZAZIONE Sepino (CB) - Molise , ITALIA
- INDIRIZZO Strada Comunale per Guardiaregia, Sepino (CB)
- TIPOLOGIA SCHEDA Architettura
-
CONDIZIONE GIURIDICA
proprietà privata
- CODICE DI CATALOGO NAZIONALE 1400076025
- ENTE COMPETENTE PER LA TUTELA Soprintendenza Archeologia, belle arti e paesaggio del Molise
- ENTE SCHEDATORE Soprintendenza Archeologia, belle arti e paesaggio del Molise
- DATA DI COMPILAZIONE 1978
-
DATA DI AGGIORNAMENTO
2019
-
DOCUMENTAZIONE GRAFICA
planimetria catastale (1)
planimetria catastale (2)
planimetria catastale (3)
planimetria catastale (4)
planimetria catastale (5)
planimetria catastale (6)
planimetria catastale (7)
planimetria catastale (8)
planimetria catastale (9)
planimetria catastale (10)
planimetria catastale (11)
- LICENZA METADATI CC-BY 4.0