Casale Castorelli
Riccia,
1930 post - 1930 ante
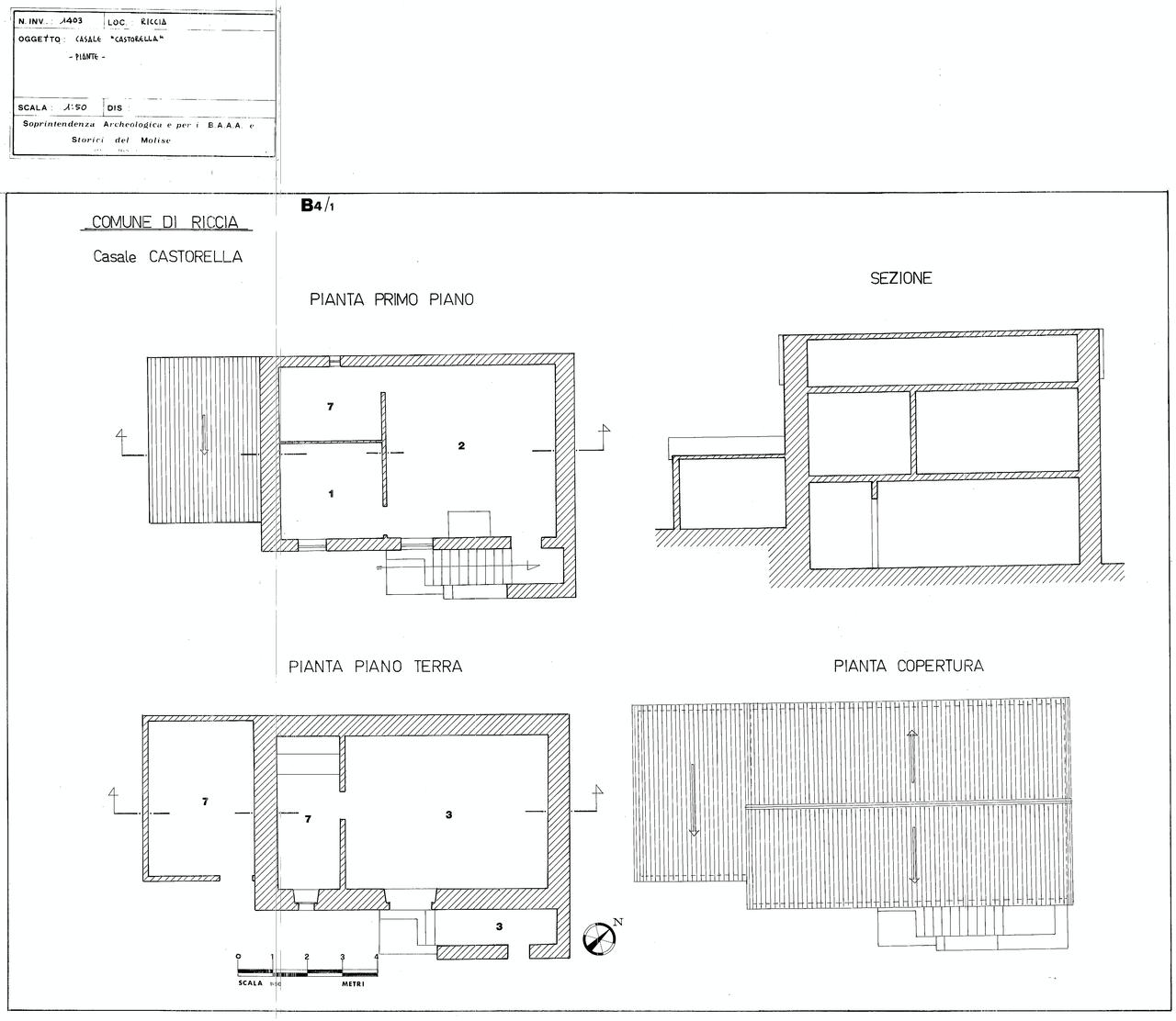
Edificio a blocco semplice articolato su due livelli. Pianta rettangolare, scala esterna in muratura di pietrame. Il piano terra è diviso in due ambienti, una stalla ed una rimessa per attrezzi, il piano primo, con accesso dalla scala esterna, è diviso in tre ambienti, cucina e due camere da letto. Privo di servizi igienici. Portoncino e finestre presentano incorniciature rispettivamente in mattoni e pietra
- OGGETTO casa-rurale
- AMBITO CULTURALE Maestranze Novecentesche
- LOCALIZZAZIONE Riccia (CB) - Molise , ITALIA
- INDIRIZZO Contrada Vicende, Riccia (CB)
- TIPOLOGIA SCHEDA Architettura
-
CONDIZIONE GIURIDICA
proprietà privata
- CODICE DI CATALOGO NAZIONALE 1400075982
- ENTE COMPETENTE PER LA TUTELA Soprintendenza per i Beni Architettonici e Paesaggistici del Molise
- ENTE SCHEDATORE Soprintendenza per i Beni Architettonici e Paesaggistici del Molise
- DATA DI COMPILAZIONE 2013
-
DATA DI AGGIORNAMENTO
2018
-
DOCUMENTAZIONE GRAFICA
carta I.G.M (1)
carta I.G.M (2)
carta I.G.M (3)
carta I.G.M (4)
carta I.G.M (5)
carta I.G.M (6)
- LICENZA METADATI CC-BY 4.0