Colonia Montana di Riccia
Riccia,
post metà XX - ante metà-XX
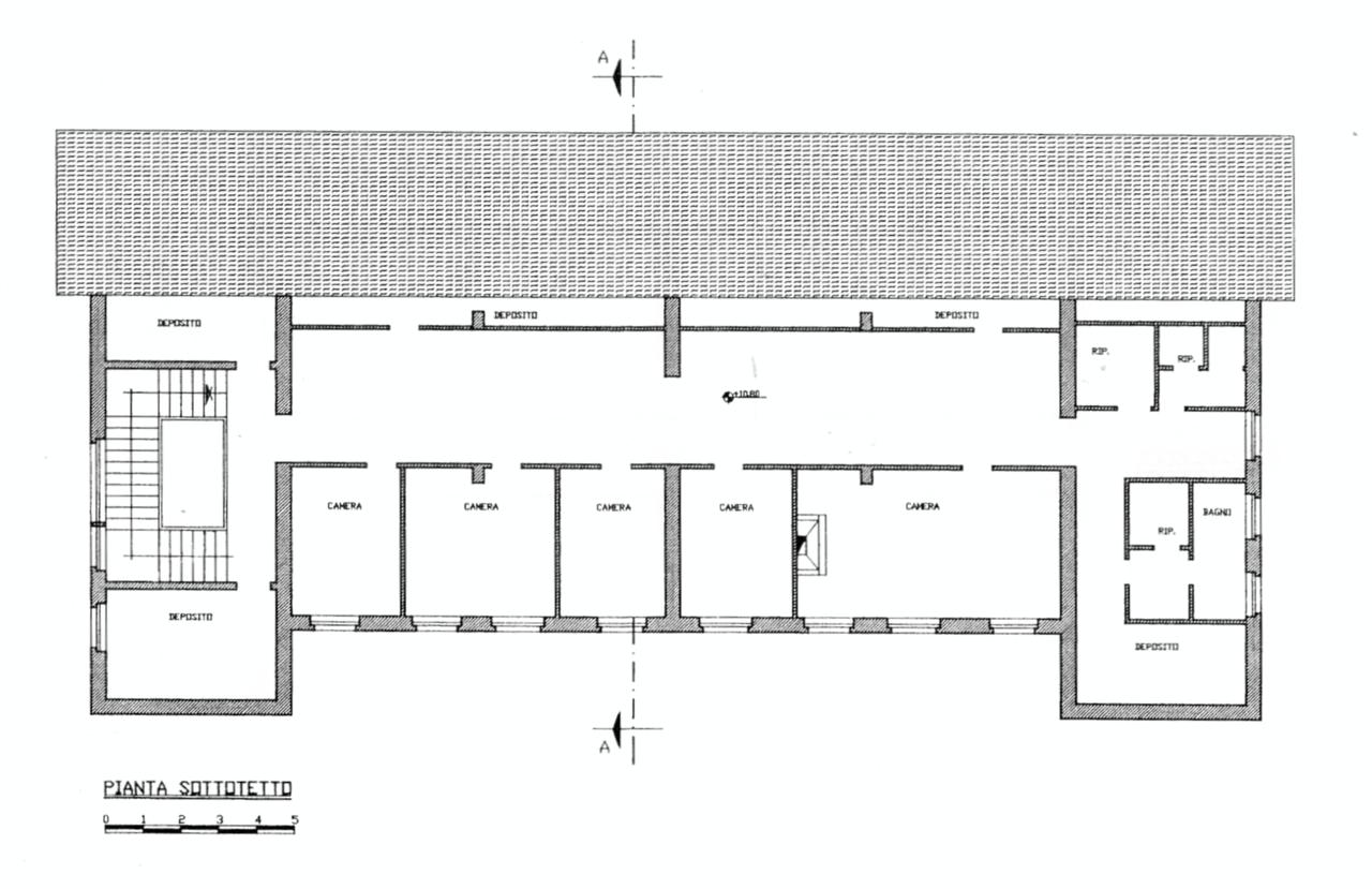
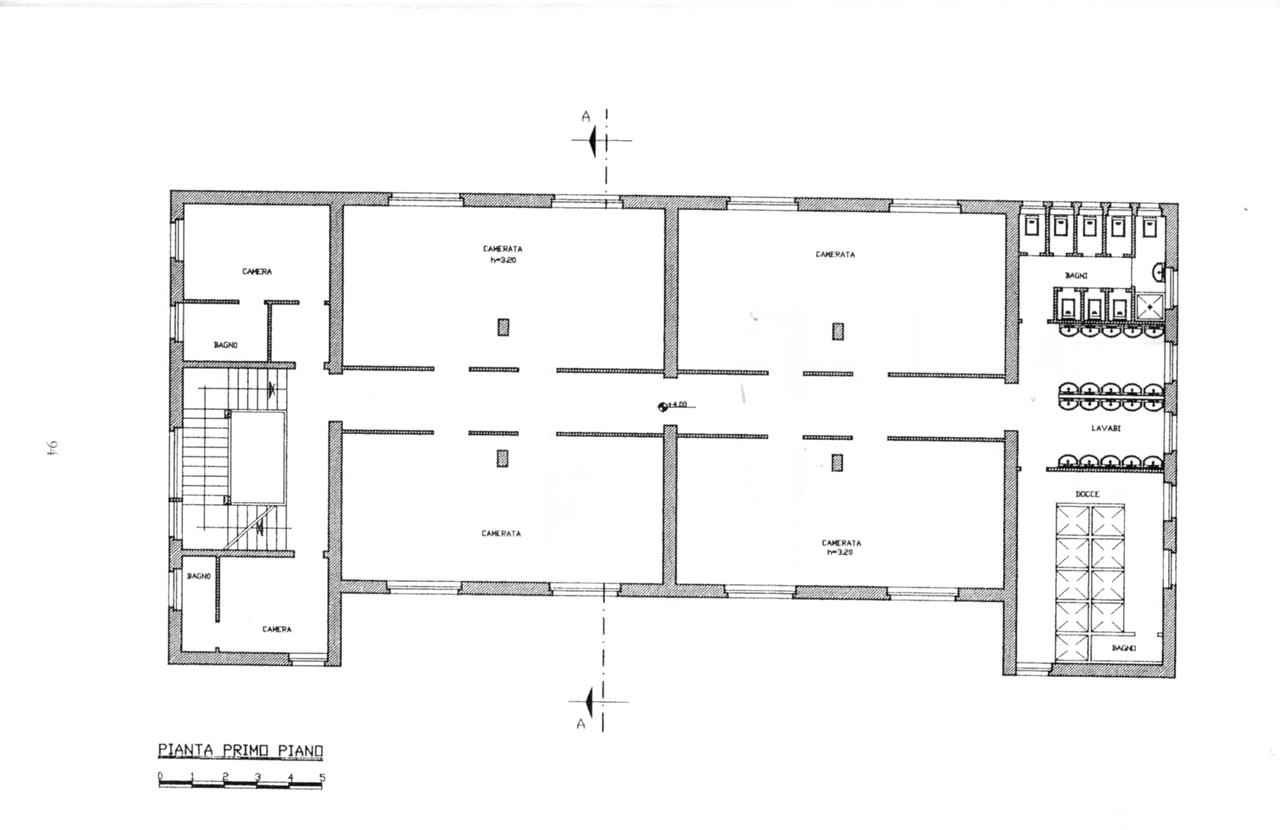
L'accesso al fabbricato avviene tramite un viale sterrato che attraversa il bosco. Accanto all'edificio principale è stato costruito un altro fabbricato destinato ad alloggio per il personale ed è composto da un unico piano fuori terra. La colonia si articola invece su tre livelli più un piano sottotetto; nelle ali laterali sono ubicati i servizi e gli elementi di collegamento verticale mentre nel corpo centrale sono realizzati gli spazi adibiti a residenza. Al piano terra vi sono le sale comuni che comunicano con i piani superiori dove sono poste le camerate; il sottotetto era invece destinato originariamente ad infermeria
- OGGETTO colonia-pubblica
- AMBITO CULTURALE Maestranze Novecentesche
- LOCALIZZAZIONE Riccia (CB) - Molise , ITALIA
- INDIRIZZO Contrada Fonte Cupa, Riccia (CB)
- TIPOLOGIA SCHEDA Architettura
-
CONDIZIONE GIURIDICA
proprietà Ente pubblico territoriale
- CODICE DI CATALOGO NAZIONALE 1400075981
- ENTE COMPETENTE PER LA TUTELA Soprintendenza per i Beni Architettonici e Paesaggistici del Molise
- ENTE SCHEDATORE Soprintendenza per i Beni Architettonici e Paesaggistici del Molise
- DATA DI COMPILAZIONE 2013
-
DATA DI AGGIORNAMENTO
2018
-
DOCUMENTAZIONE GRAFICA
carta I.G.M (1)
carta I.G.M (2)
carta I.G.M (3)
carta I.G.M (4)
carta I.G.M (5)
carta I.G.M (6)
carta I.G.M (7)
carta I.G.M (8)
carta I.G.M (9)
- LICENZA METADATI CC-BY 4.0