Casale Sedati
Riccia,
1884 post - 1955 ante
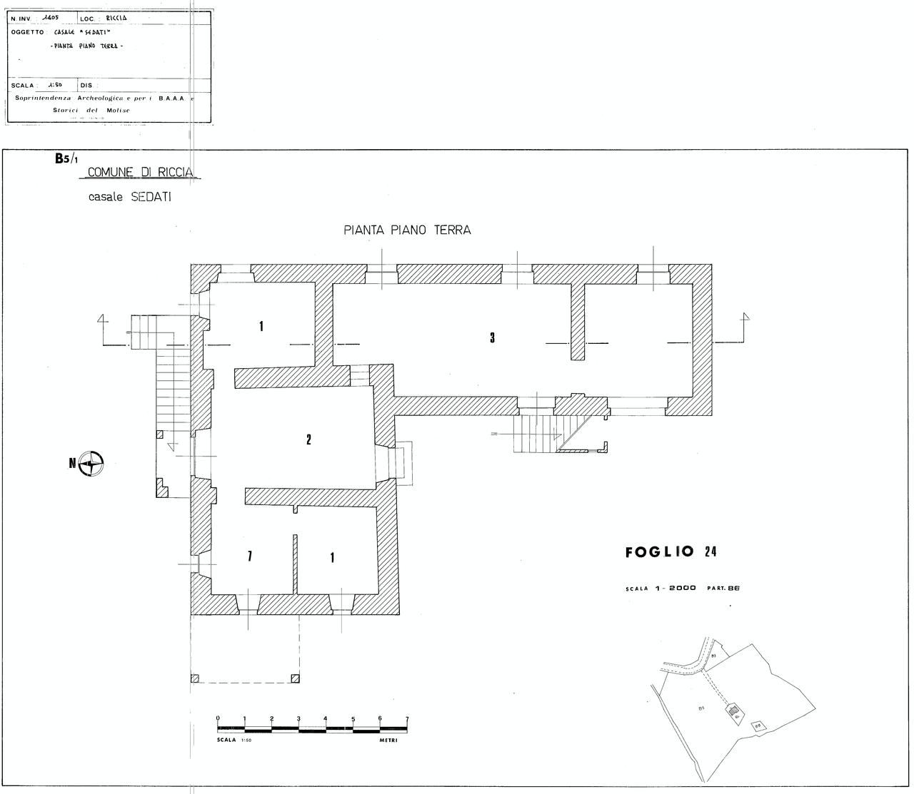
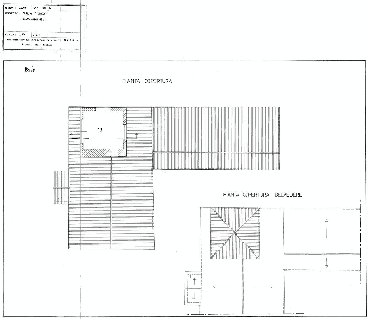
Fabbricato che sorge su terreno pianeggiante, inserito in una macchia di alberi, di notevole dimensione con sviluppo planimetrico ad L. Interessante la parte più antica per la presenza di due torrette quadrate. Al piano terra l'abitazione colonica formata da sei vani comprendenti stalle e rimessa attrezzi; al primo piano, l'abitazione padronale, con accesso dalla scala esterna, diviso in sette vani, più il fienile. La facciata principale presenta la scala esterna con terrazzino, quella laterale un balcone con mensola sagomata. Portale e finestre con incorniciature in pietra
- OGGETTO azienda agricola-padronale
- AMBITO CULTURALE Maestranze Ottocentesche
- LOCALIZZAZIONE Riccia (CB) - Molise , ITALIA
- INDIRIZZO Contrada Rio Secco, Riccia (CB)
- TIPOLOGIA SCHEDA Architettura
-
CONDIZIONE GIURIDICA
proprietà privata
- CODICE DI CATALOGO NAZIONALE 1400075980
- ENTE COMPETENTE PER LA TUTELA Soprintendenza per i Beni Architettonici e Paesaggistici del Molise
- ENTE SCHEDATORE Soprintendenza per i Beni Architettonici e Paesaggistici del Molise
- DATA DI COMPILAZIONE 2013
-
DATA DI AGGIORNAMENTO
2018
-
DOCUMENTAZIONE GRAFICA
carta I.G.M (1)
carta I.G.M (2)
carta I.G.M (3)
carta I.G.M (4)
carta I.G.M (5)
carta I.G.M (6)
carta I.G.M (7)
carta I.G.M (8)
carta I.G.M (9)
- LICENZA METADATI CC-BY 4.0