Casa Iaverone
Riccia,
- 1893 ante
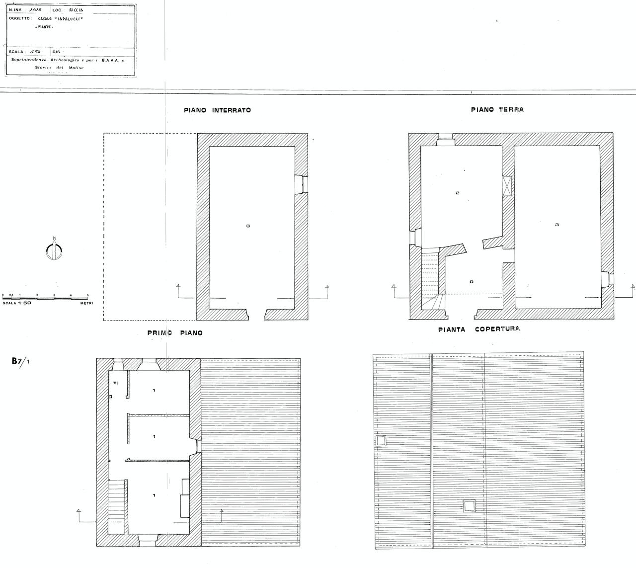
Edificio a blocco semplice che sorge, isolato, su un masso emergente, articolato su due livelli. Pianta rettangolare. Sacala interna in muratura di pietrame. Il piano terra è formato da un solo ambiente con piccolo androne; il primo piano è composto da tre vani. La facciata principale presenta finestra ed accesso incorniciato in piera. Edificio fornito di servizi igienici
- OGGETTO casa-rurale
- AMBITO CULTURALE Maestranze Novecentesche
- LOCALIZZAZIONE Riccia (CB) - Molise , ITALIA
- INDIRIZZO Contrada Rio Secco, Riccia (CB)
- TIPOLOGIA SCHEDA Architettura
-
CONDIZIONE GIURIDICA
proprietà privata
- CODICE DI CATALOGO NAZIONALE 1400075979
- ENTE COMPETENTE PER LA TUTELA Soprintendenza per i Beni Architettonici e Paesaggistici del Molise
- ENTE SCHEDATORE Soprintendenza per i Beni Architettonici e Paesaggistici del Molise
- DATA DI COMPILAZIONE 2013
-
DATA DI AGGIORNAMENTO
2018
-
DOCUMENTAZIONE GRAFICA
carta I.G.M (1)
carta I.G.M (2)
carta I.G.M (3)
carta I.G.M (4)
carta I.G.M (5)
carta I.G.M (6)
- LICENZA METADATI CC-BY 4.0