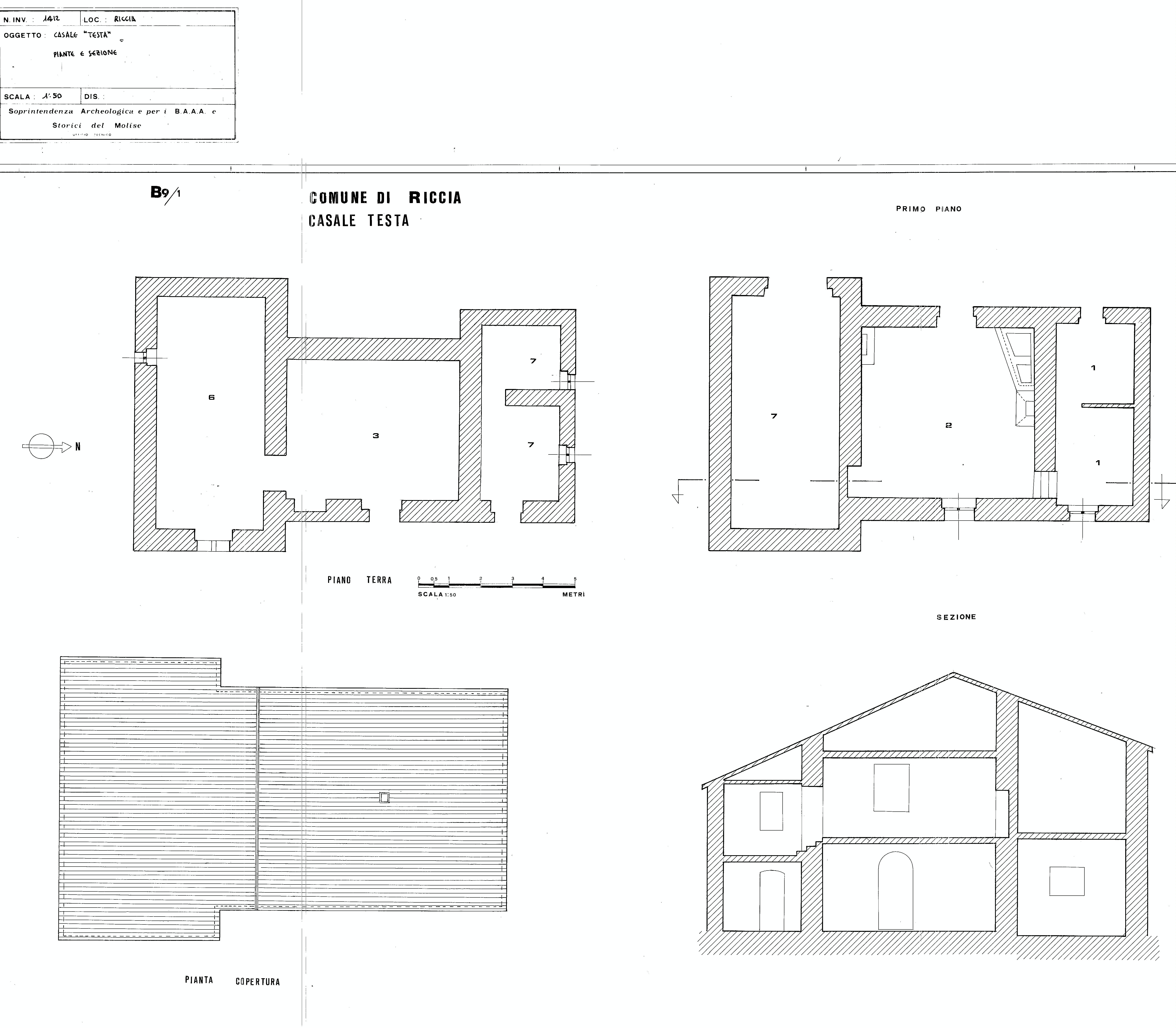
Casale Testa
Riccia,
post inizio XX - ante fine-XX
Edificio isolato che sorge su terreno in lieve pendio, inserito in una macchia di alberi, a blocco semplice articolato su due livelli. Il seminterrato è diviso in quattro ambienti, come pure il piano terra. Accessi e finestre presentano incorniciature in pietra
- OGGETTO casa-rurale
- AMBITO CULTURALE Maestranze Novecentesche
- LOCALIZZAZIONE Riccia (CB) - Molise , ITALIA
- INDIRIZZO Contrada Parruccia, Riccia (CB)
- TIPOLOGIA SCHEDA Architettura
-
CONDIZIONE GIURIDICA
proprietà privata
- CODICE DI CATALOGO NAZIONALE 1400075978
- ENTE COMPETENTE PER LA TUTELA Soprintendenza per i Beni Architettonici e Paesaggistici del Molise
- ENTE SCHEDATORE Soprintendenza per i Beni Architettonici e Paesaggistici del Molise
- DATA DI COMPILAZIONE 2013
-
DATA DI AGGIORNAMENTO
2018
-
DOCUMENTAZIONE GRAFICA
carta I.G.M (1)
carta I.G.M (2)
carta I.G.M (3)
carta I.G.M (4)
carta I.G.M (5)
carta I.G.M (6)
- LICENZA METADATI CC-BY 4.0