Casa Gianna
Montefalcone nel Sannio,
1875/00/00 post - 1875/00/00 ante
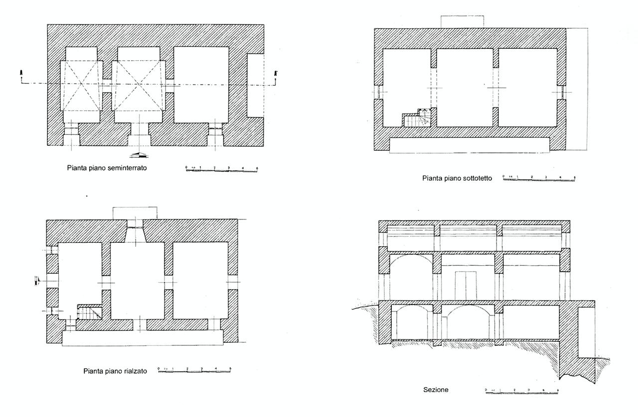
L'edificio, che è compreso in un gruppo di case sparse, sorge su un terreno in lieve pendio ed è inserito in una macchia di alberi. La costruzione è a blocco semplice con pianta rettangolare. È caratterizzata da due facciate una di monte ed una di valle di forma rettangolare con la parte superiore sporgente rispetto al corpo longitudinale. Costituita da tre livelli presenta al piano terra i locali deposito, oggi stalle, ed il piano residenziale al primo piano oltre ad una grande piccionaia nel sottotetto
- OGGETTO casa-rurale
- AMBITO CULTURALE Maestranze Ottocentesche
- LOCALIZZAZIONE Montefalcone nel Sannio (CB) - Molise , ITALIA
- INDIRIZZO Contrada Fermano, Montefalcone nel Sannio (CB)
- TIPOLOGIA SCHEDA Architettura
-
CONDIZIONE GIURIDICA
proprietà privata
- CODICE DI CATALOGO NAZIONALE 1400075926
- ENTE COMPETENTE PER LA TUTELA Soprintendenza per i Beni Architettonici e Paesaggistici del Molise
- ENTE SCHEDATORE Soprintendenza per i Beni Architettonici e Paesaggistici del Molise
- DATA DI COMPILAZIONE 1979
-
DATA DI AGGIORNAMENTO
2017
-
DOCUMENTAZIONE ALLEGATA
scheda di catalogo (1)
-
DOCUMENTAZIONE GRAFICA
carta I.G.M (1)
carta I.G.M (2)
carta I.G.M (3)
carta I.G.M (4)
carta I.G.M (5)
- LICENZA METADATI CC-BY 4.0