casa-a blocco
Colletorto,
1320/00/00 ante - 1320/00/00 ante
- OGGETTO casa-a blocco
- AMBITO CULTURALE Maestranze Ottocentesche
- LOCALIZZAZIONE Colletorto (CB) - Molise , ITALIA
- INDIRIZZO Via Giovanni Bovio 1, Colletorto (CB)
- TIPOLOGIA SCHEDA Architettura
-
CONDIZIONE GIURIDICA
proprietà privata
- CODICE DI CATALOGO NAZIONALE 1400075735
- ENTE COMPETENTE PER LA TUTELA Soprintendenza per i Beni Architettonici e Paesaggistici del Molise
- ENTE SCHEDATORE Soprintendenza per i Beni Architettonici e Paesaggistici del Molise
- DATA DI COMPILAZIONE 2005
-
DATA DI AGGIORNAMENTO
2018
-
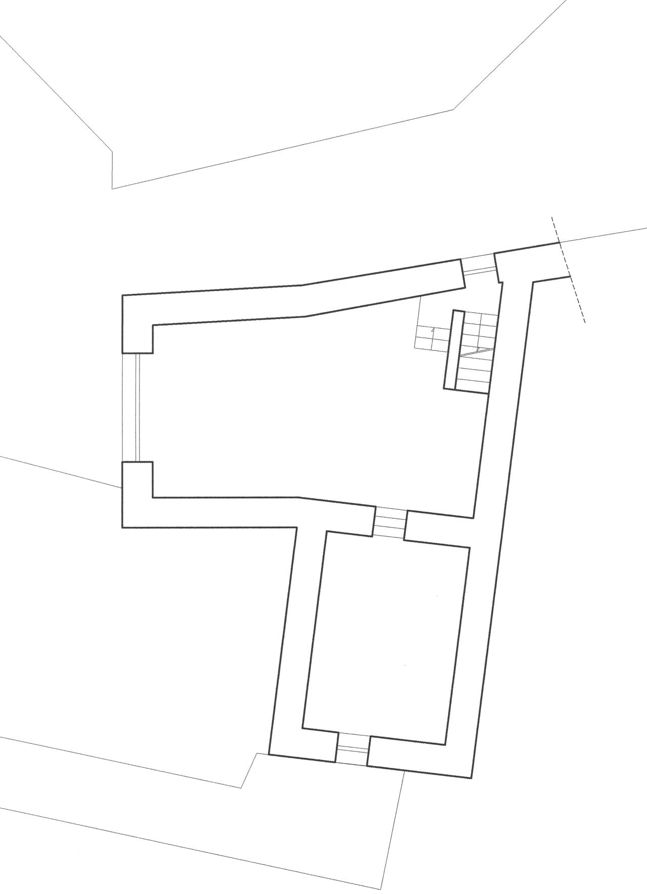
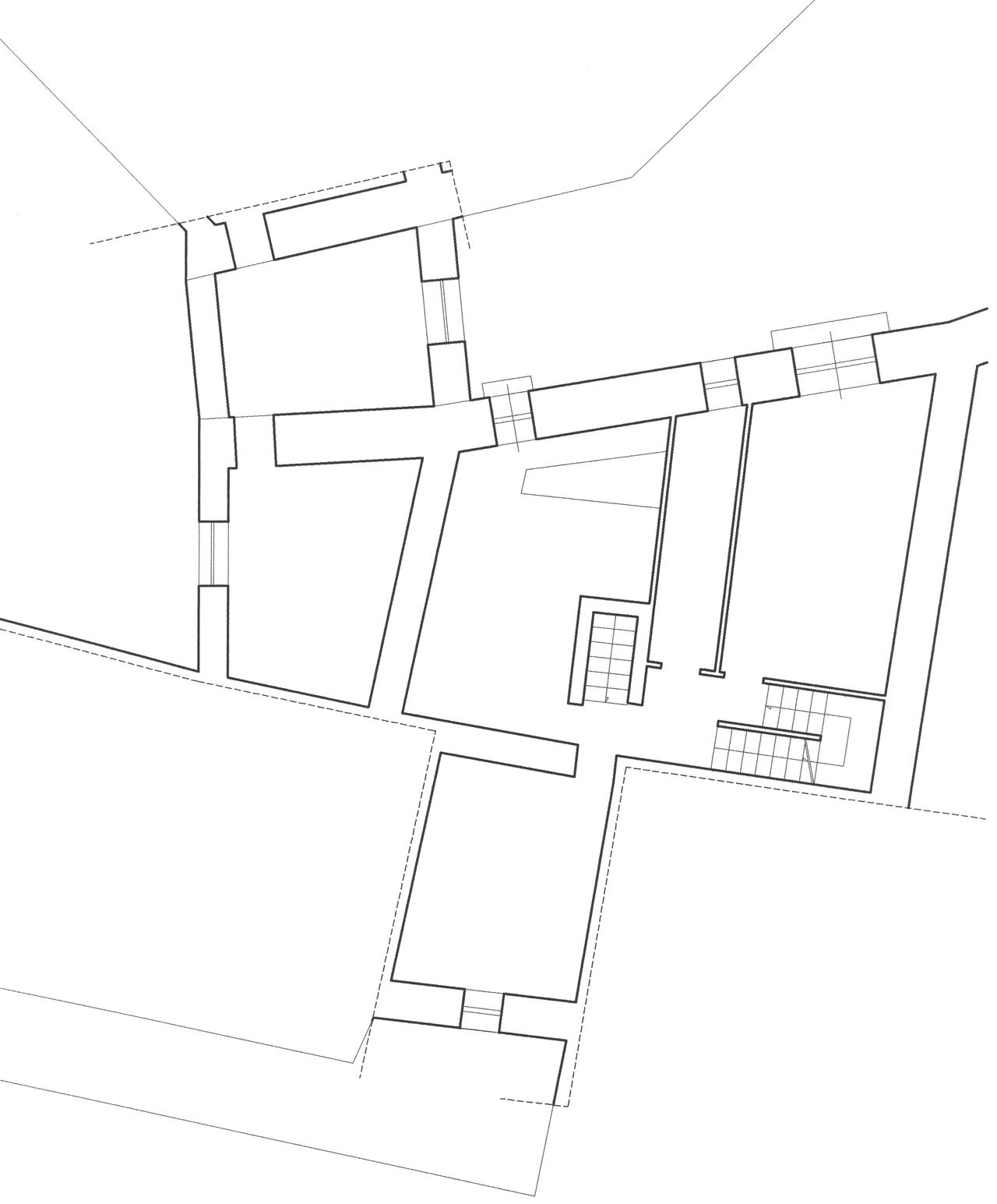
DOCUMENTAZIONE GRAFICA
planimetria catastale (1)
planimetria catastale (2)
planimetria catastale (3)
planimetria catastale (4)
planimetria catastale (5)
- LICENZA METADATI CC-BY 4.0