casa-a schiera, con porta urbica
Colletorto,
1320/00/00 ante - 1320/00/00 ante
L’arco inserito nell'edificio è sicuramente uno dei più ampi. Si apre su via G. Bovio ed è posto ad una quota più alta rispetto al piano stradale. E’ raggiungibile mediante una piccola scalinata in pietra che prosegue all’interno dell’arco stesso fino a via T. Tasso. Nel tratto prossimo a questa via le dimensioni si riducono sensibilmente. L’interno è rivestito in cemento, le imposte su via G. Bovio sono in pietra e l’arco a tutto sesto è in mattoni, segno evidente di interventi recenti
- OGGETTO casa-a schiera, con porta urbica
- AMBITO CULTURALE Maestranze Medievali
- LOCALIZZAZIONE Colletorto (CB) - Molise , ITALIA
- INDIRIZZO Via Giovanni Bovio 47, Colletorto (CB)
- TIPOLOGIA SCHEDA Architettura
-
CONDIZIONE GIURIDICA
proprietà privata
- CODICE DI CATALOGO NAZIONALE 1400075729
- ENTE COMPETENTE PER LA TUTELA Soprintendenza per i Beni Architettonici e Paesaggistici del Molise
- ENTE SCHEDATORE Soprintendenza per i Beni Architettonici e Paesaggistici del Molise
- DATA DI COMPILAZIONE 2005
-
DATA DI AGGIORNAMENTO
2018
-
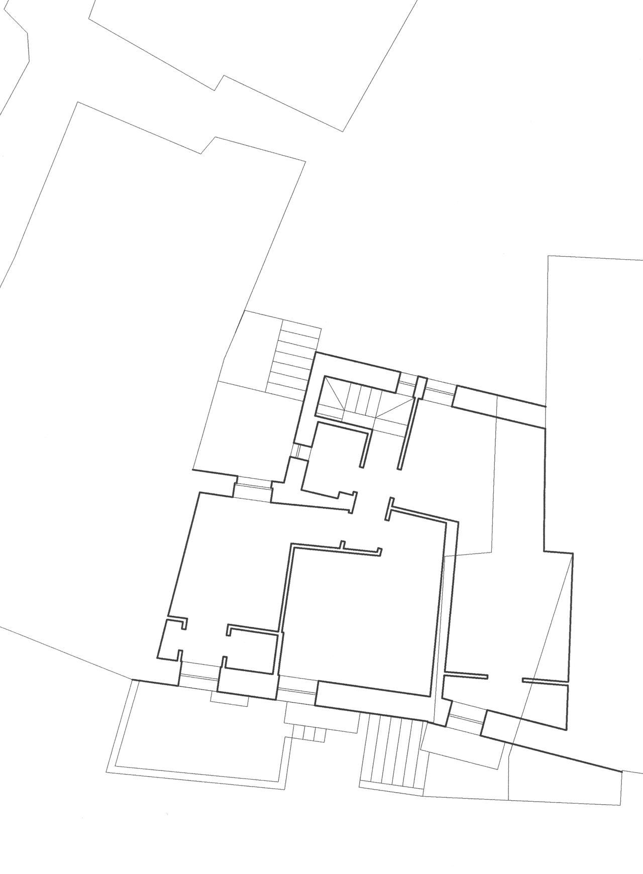
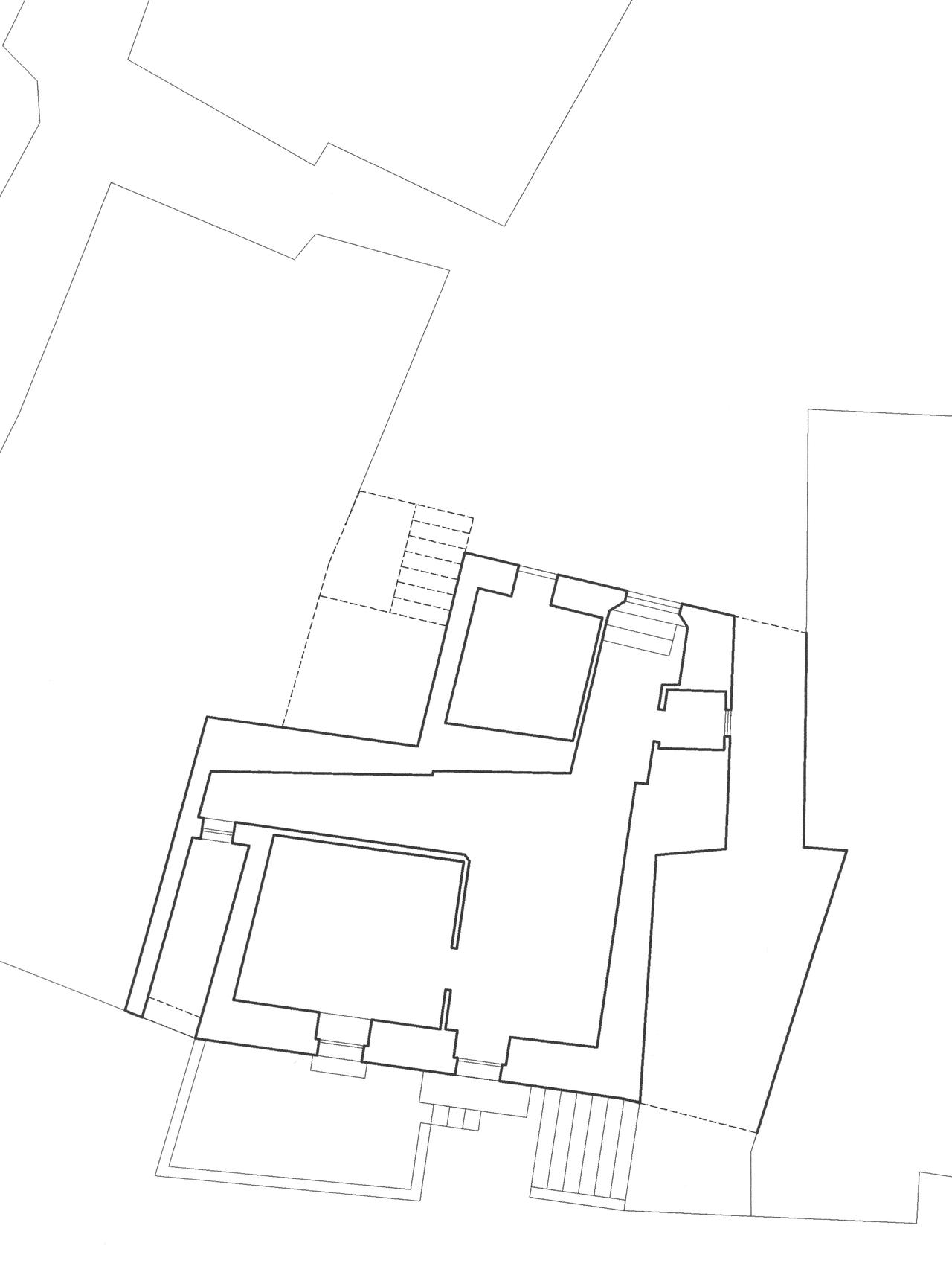
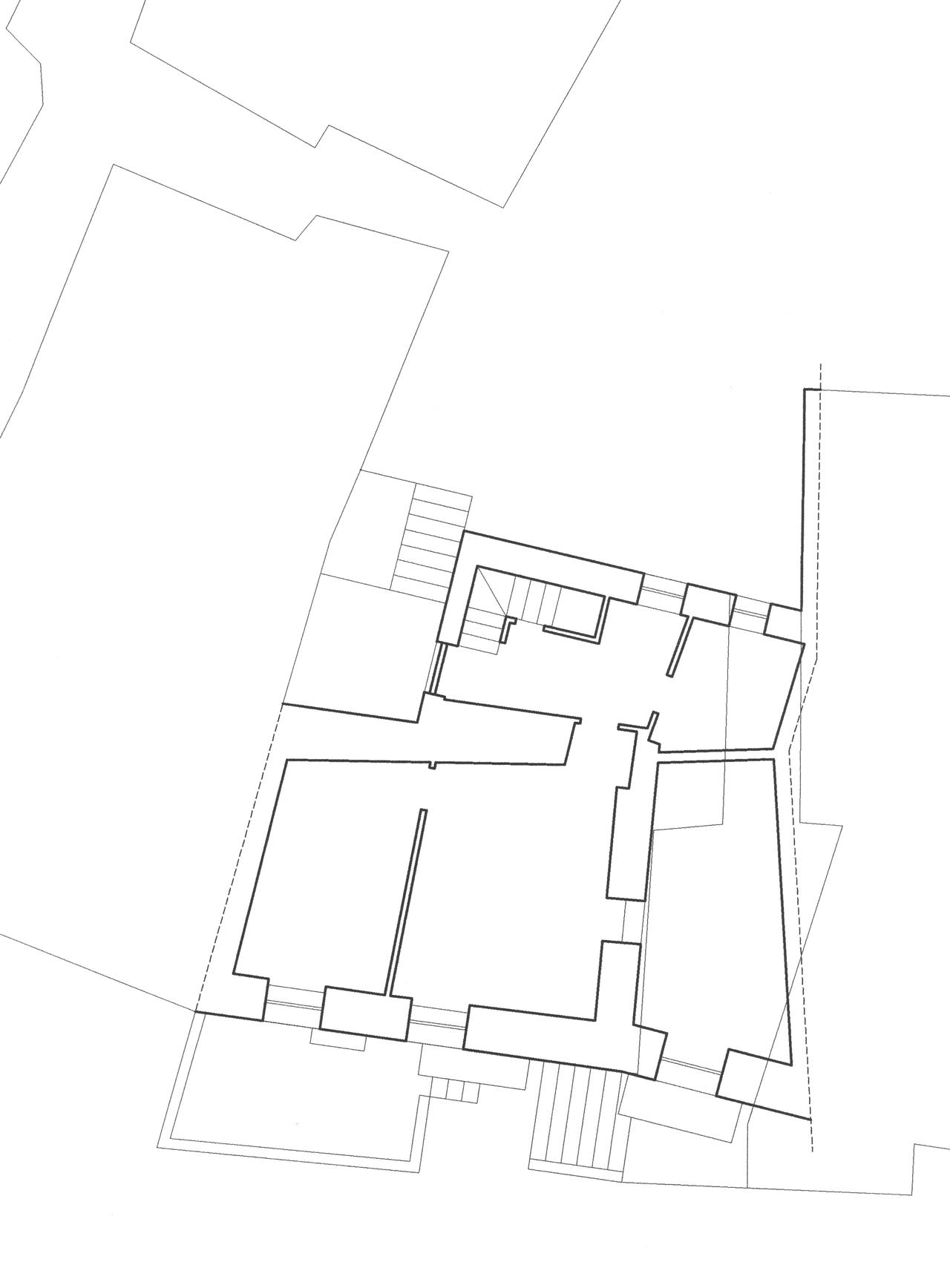
DOCUMENTAZIONE GRAFICA
planimetria catastale (1)
planimetria catastale (2)
planimetria catastale (3)
planimetria catastale (4)
planimetria catastale (5)
planimetria catastale (6)
planimetria catastale (7)
- LICENZA METADATI CC-BY 4.0