casa-a blocco, plurifamiliare, (porzione)
Termoli,
post XX - ante XX
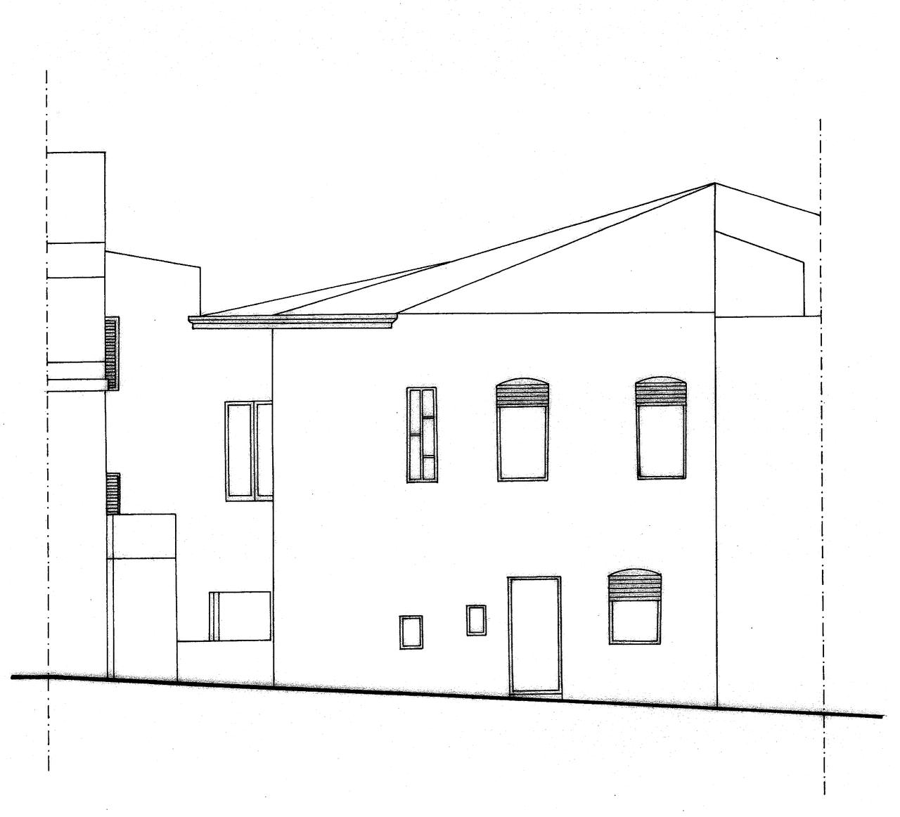
L'edificio in pianta quadrangolare, si sviluppa su due livelli di piano; la muratura portante è mista in pietra e mattoni ed è intonacata. La copertura è a falde raccordate a padiglione con manto in coppi di laterizio. La facciata principale su Vico Marinucci presenta porte e finestre variamente disposte sui due livelli di piano. Nell'immobile di cui fa parte, complessivamente quindici unità abitative, una bottega ed un laboratorio
- OGGETTO casa-a blocco, plurifamiliare, (porzione)
- AMBITO CULTURALE Maestranze Novecentesche
- LOCALIZZAZIONE Termoli (CB) - Molise , ITALIA
- INDIRIZZO Via Salvatore Marinucci 15, Termoli (CB)
- TIPOLOGIA SCHEDA Architettura
-
CONDIZIONE GIURIDICA
proprietà privata
- CODICE DI CATALOGO NAZIONALE 1400075597
- ENTE COMPETENTE PER LA TUTELA Soprintendenza per i Beni Architettonici e Paesaggistici del Molise
- ENTE SCHEDATORE Soprintendenza per i Beni Architettonici e Paesaggistici del Molise
- DATA DI COMPILAZIONE 1983
-
DATA DI AGGIORNAMENTO
2017
-
DOCUMENTAZIONE GRAFICA
planimetria catastale (1)
planimetria catastale (2)
planimetria catastale (3)
planimetria catastale (4)
planimetria catastale (5)
planimetria catastale (6)
- LICENZA METADATI CC-BY 4.0