Casa Fabrizio
Termoli,
post inizio XX - ante inizio-XX
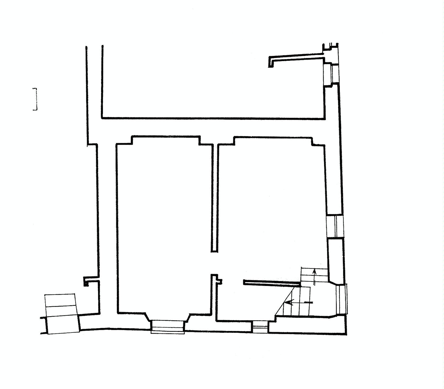
Il fabbricato di forma quadrangolare, si sviluppa su due livelli di piano, ha strutture in pietrame e laterizio ed è intonacata, le facciate sono semplici e prive di elementi architettonici di rilievo. La copertura è a due falde
- OGGETTO casa-a schiera, monofamiliare
- AMBITO CULTURALE Maestranze Novecentesche
- LOCALIZZAZIONE Termoli (CB) - Molise , ITALIA
- INDIRIZZO Vico Policarpo Manes 71, Termoli (CB)
- TIPOLOGIA SCHEDA Architettura
-
CONDIZIONE GIURIDICA
proprietà privata
- CODICE DI CATALOGO NAZIONALE 1400075588
- ENTE COMPETENTE PER LA TUTELA Soprintendenza per i Beni Architettonici e Paesaggistici del Molise
- ENTE SCHEDATORE Soprintendenza per i Beni Architettonici e Paesaggistici del Molise
- DATA DI COMPILAZIONE 1977
-
DATA DI AGGIORNAMENTO
1983
2017
-
DOCUMENTAZIONE GRAFICA
planimetria catastale (1)
planimetria catastale (2)
planimetria catastale (3)
planimetria catastale (4)
planimetria catastale (5)
planimetria catastale (6)
planimetria catastale (7)
- LICENZA METADATI CC-BY 4.0