Casa Cannarsa-Piscone
Termoli,
post inizio XX - ante inizio-XX
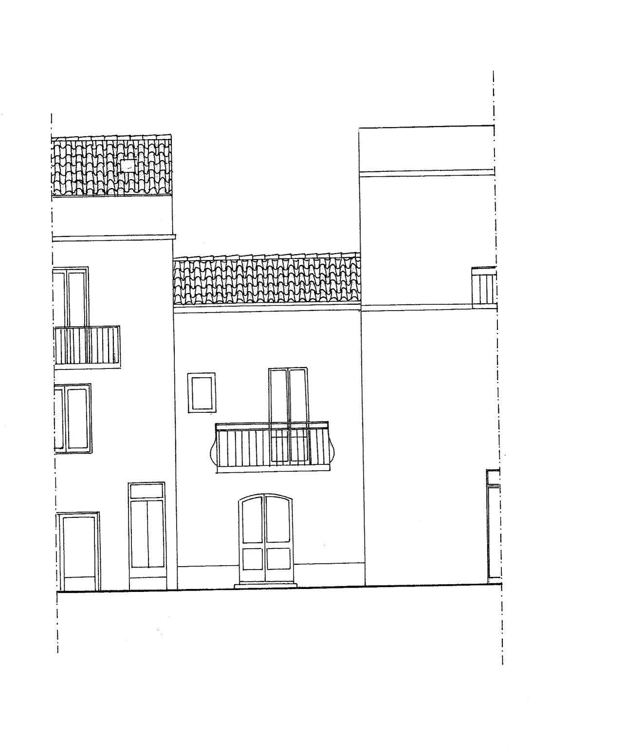
Il fabbricato, con strutture in pietrame e laterizio, si sviluppa su due livelli di piano, scarsamente articolato il prospetto risulta nel complesso semplice e lineare. La copertura è a due falde. Nel complesso di cui è parte complessive quattro unità abitative
- OGGETTO casa-a schiera, plurifamiliare, (porzione)
- AMBITO CULTURALE Maestranze Novecentesche
- LOCALIZZAZIONE Termoli (CB) - Molise , ITALIA
- INDIRIZZO Via P. Manes 3, 5, Termoli (CB)
- TIPOLOGIA SCHEDA Architettura
-
CONDIZIONE GIURIDICA
proprietà privata
- CODICE DI CATALOGO NAZIONALE 1400075583
- ENTE COMPETENTE PER LA TUTELA Soprintendenza per i Beni Architettonici e Paesaggistici del Molise
- ENTE SCHEDATORE Soprintendenza per i Beni Architettonici e Paesaggistici del Molise
- DATA DI COMPILAZIONE 1977
-
DATA DI AGGIORNAMENTO
1983
2017
-
DOCUMENTAZIONE GRAFICA
planimetria catastale (1)
planimetria catastale (2)
planimetria catastale (3)
planimetria catastale (4)
planimetria catastale (5)
planimetria catastale (6)
planimetria catastale (7)
- LICENZA METADATI CC-BY 4.0