casa-a schiera
Pesche,
post XIV - ante XV
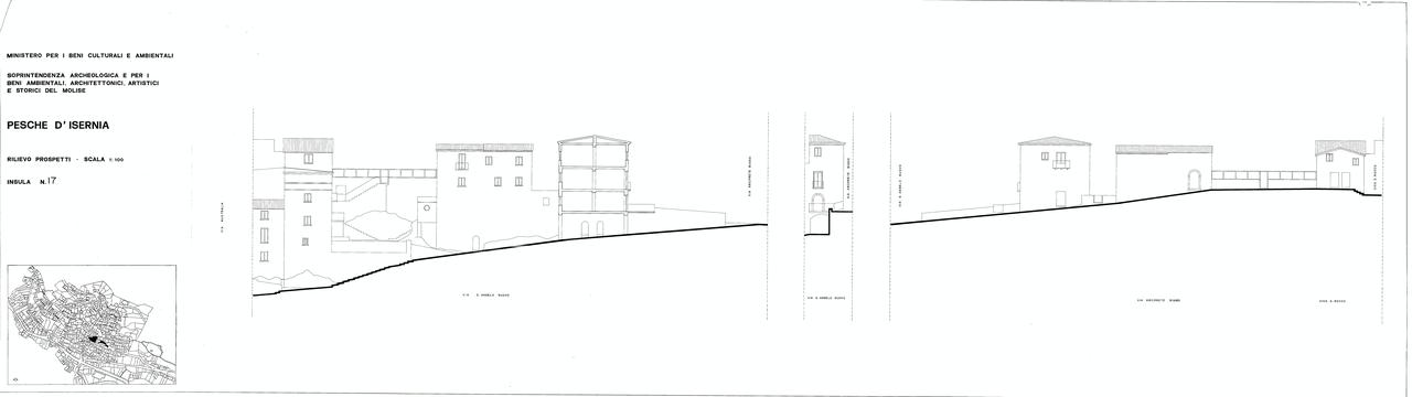
L’edificio è in pianta di forma irregolare e si sviluppa su tre livelli di piano di cui uno seminterrato per il dislivello delle quote circostanti. Il piano primo è disimpegnato da un ingresso autonomo, al piano superiore si accede da una botola con scala in legno. Le facciate conservano i caratteri originari, le aperture sono disposte in modo irregolare. La muratura portante è in pietrame del tipo a sacco e la copertura è del tipo a una falda
- OGGETTO casa-a schiera
- AMBITO CULTURALE Maestranze Trecentesche
- LOCALIZZAZIONE Pesche (IS) - Molise , ITALIA
- INDIRIZZO Via Sant'Angelo Nuovo, Pesche (IS)
- TIPOLOGIA SCHEDA Architettura
-
CONDIZIONE GIURIDICA
proprietà privata
- CODICE DI CATALOGO NAZIONALE 1400075303
- ENTE COMPETENTE PER LA TUTELA Soprintendenza per i Beni Architettonici e Paesaggistici del Molise
- ENTE SCHEDATORE Soprintendenza per i Beni Architettonici e Paesaggistici del Molise
- DATA DI COMPILAZIONE 1982
-
DOCUMENTAZIONE ALLEGATA
scheda catalogo (1)
-
DOCUMENTAZIONE GRAFICA
planimetria catastale (1)
planimetria catastale (2)
planimetria catastale (3)
planimetria catastale (4)
planimetria catastale (5)
- LICENZA METADATI CC-BY 4.0