casa-a schiera
Pesche,
post XVIII - ante XVIII
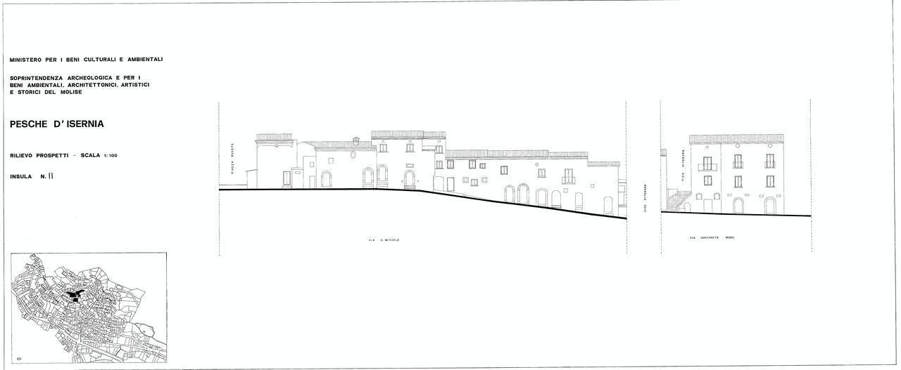
L’edificio è in pianta di forma irregolare e si sviluppa su quattro livelli di piano, in corrispondenza del salto di quota a valle di Via San Michele. La struttura portante è in muratura in pietrame del tipo a sacco intonacata. L’unico piano residenziale è quello su Via San Michele, il che giustifica un disimpegno verticale assicurato da una botola con scala di legno. La facciata rivela caratteri settecenteschi: i due portoncini con cornici in pietra ad arco a tutto sesto, una finestra circolare, una serie di motivi decorativi in stucco ed il cornicione modanato. La facciata a Sud è eterogenea, priva di intonaco e le aperture disposte in modo irregolare. La copertura è del tipo a falde
- OGGETTO casa-a schiera
- AMBITO CULTURALE Maestranze Settecentesche
- LOCALIZZAZIONE Pesche (IS) - Molise , ITALIA
- INDIRIZZO Via San Michele, Pesche (IS)
- TIPOLOGIA SCHEDA Architettura
-
CONDIZIONE GIURIDICA
proprietà privata
- CODICE DI CATALOGO NAZIONALE 1400075277
- ENTE COMPETENTE PER LA TUTELA Soprintendenza per i Beni Architettonici e Paesaggistici del Molise
- ENTE SCHEDATORE Soprintendenza per i Beni Architettonici e Paesaggistici del Molise
- DATA DI COMPILAZIONE 1982
-
DOCUMENTAZIONE ALLEGATA
scheda catalogo (1)
-
DOCUMENTAZIONE GRAFICA
planimetria catastale (1)
planimetria catastale (2)
planimetria catastale (3)
planimetria catastale (4)
- LICENZA METADATI CC-BY 4.0