palazzo-plurifamiliare
Pesche,
post XIX - ante XIX
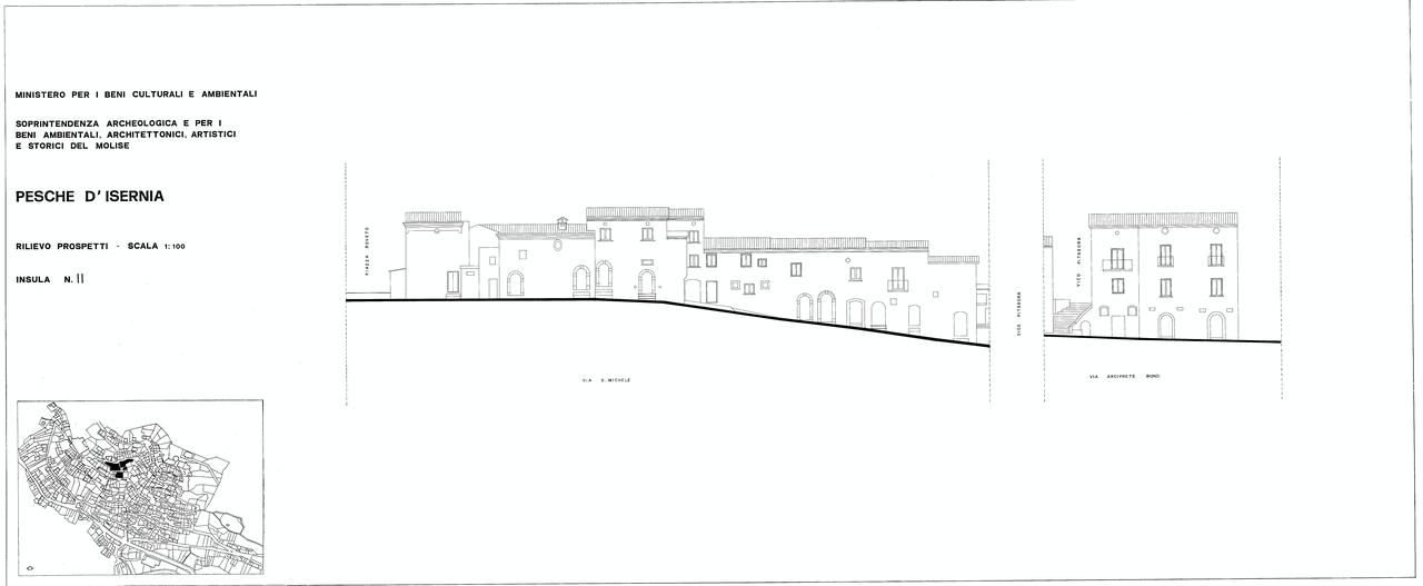
L’edificio è in pianta di forma irregolare e si sviluppa su cinque livelli di piano. La struttura portante è in muratura in pietrame del tipo a sacco ed in parte intonacata con intonaco cementizio. Il notevole salto di quota che si crea a valle di Via San Michele presenta tre piano interrati con ingressi a quote diverse anche lungo la scalinata di Vico Euclide. La facciata su via San Michele risulta profondamente alterata da interventi eseguiti nel corso degli anni. La copertura è del tipo a falde
- OGGETTO palazzo-plurifamiliare
- AMBITO CULTURALE Maestranze Ottocentesche
- LOCALIZZAZIONE Pesche (IS) - Molise , ITALIA
- INDIRIZZO Via San Michele, Pesche (IS)
- TIPOLOGIA SCHEDA Architettura
-
CONDIZIONE GIURIDICA
proprietà privata
- CODICE DI CATALOGO NAZIONALE 1400075275
- ENTE COMPETENTE PER LA TUTELA Soprintendenza per i Beni Architettonici e Paesaggistici del Molise
- ENTE SCHEDATORE Soprintendenza per i Beni Architettonici e Paesaggistici del Molise
- DATA DI COMPILAZIONE 1981
-
DOCUMENTAZIONE ALLEGATA
scheda catalogo (1)
-
DOCUMENTAZIONE GRAFICA
planimetria catastale (1)
planimetria catastale (2)
planimetria catastale (3)
planimetria catastale (4)
- LICENZA METADATI CC-BY 4.0