casa-a schiera
Pesche,
post XIV - ante metà-XX
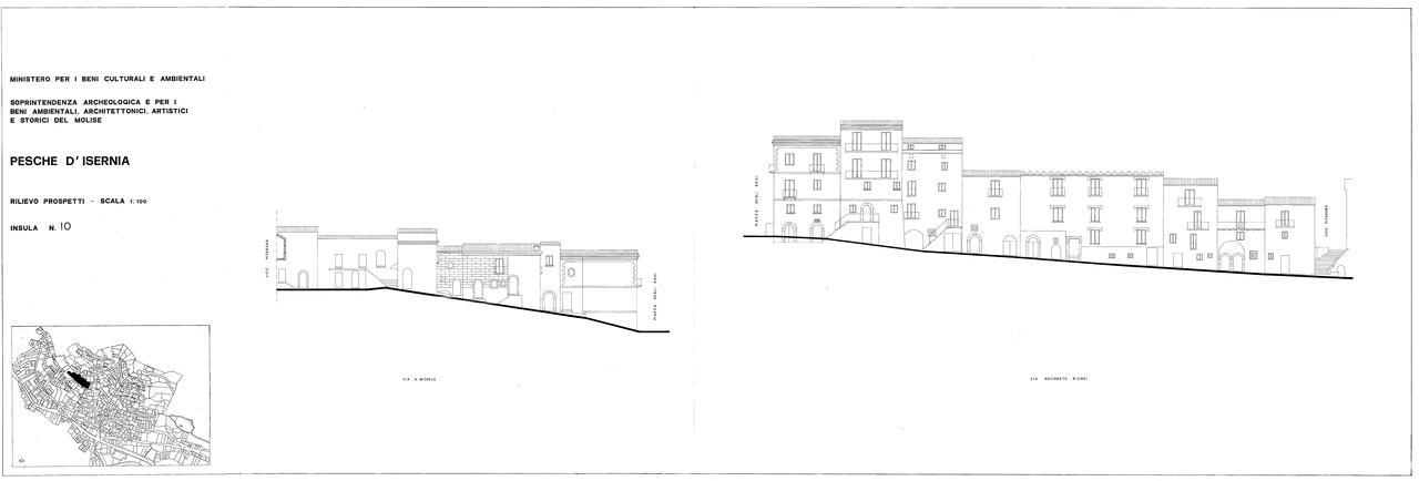
L’edificio è in pianta di forma rettangolare e si sviluppa su tre livelli di piano. La struttura portante è in muratura in pietrame e blocchetti di tufo del tipo a sacco. Ai piani residenziali si accede da una scala esterna su Vico Pitagora, al primo piano si accede dalla strada mentre il secondo da una scala esterna che serve anche il corpo di fabbrica attiguo. Le facciate rivelano un intenso processo di stratificazioni e sono di modesto interesse architettonico, le aperture sono state create in varie epoche per esigenze di tipo distributivo. La copertura è ad un’unica falda
- OGGETTO casa-a schiera
- AMBITO CULTURALE Maestranze Novecentesche
- LOCALIZZAZIONE Pesche (IS) - Molise , ITALIA
- INDIRIZZO Via Arciprete Biondi, Pesche (IS)
- TIPOLOGIA SCHEDA Architettura
-
CONDIZIONE GIURIDICA
proprietà privata
- CODICE DI CATALOGO NAZIONALE 1400075273
- ENTE COMPETENTE PER LA TUTELA Soprintendenza per i Beni Architettonici e Paesaggistici del Molise
- ENTE SCHEDATORE Soprintendenza per i Beni Architettonici e Paesaggistici del Molise
- DATA DI COMPILAZIONE 1982
-
DOCUMENTAZIONE ALLEGATA
scheda catalogo (1)
-
DOCUMENTAZIONE GRAFICA
planimetria catastale (1)
planimetria catastale (2)
planimetria catastale (3)
planimetria catastale (4)
- LICENZA METADATI CC-BY 4.0