casa-isolata
Pesche,
post XIX - ante XX
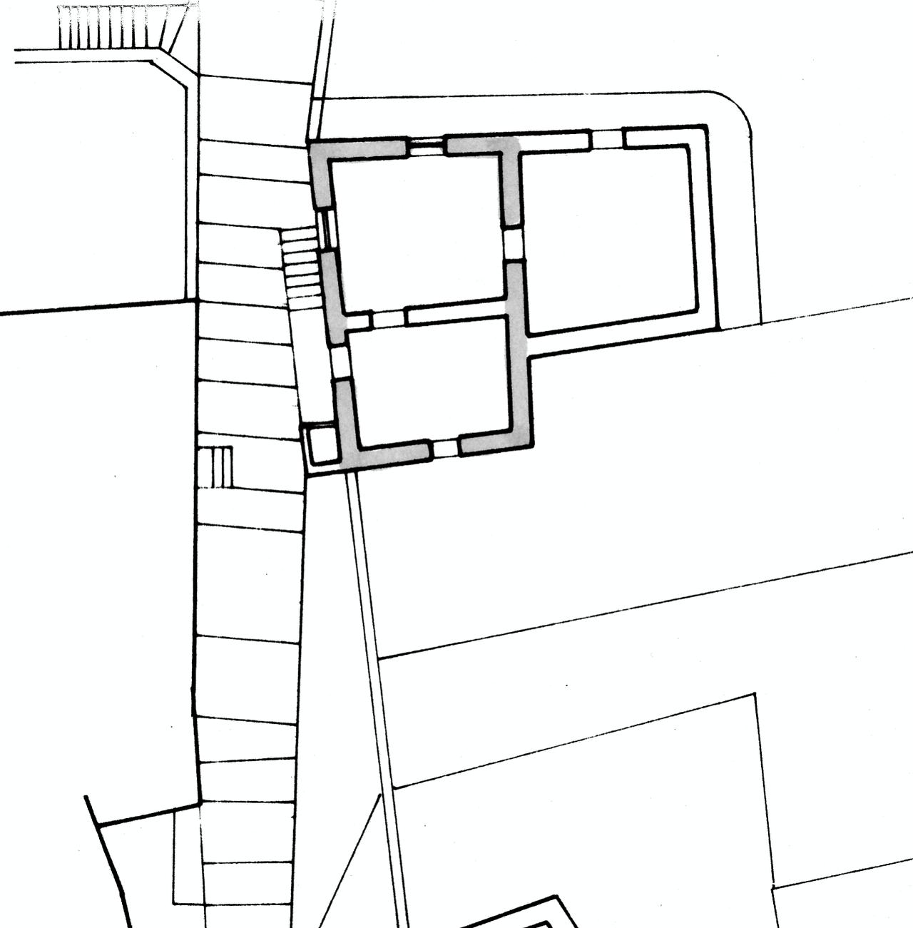
L’edificio è in pianta di forma rettangolare e si sviluppa su due livelli di piano di cui uno seminterrato. Lungo la facciata principale è posta una scala che termina in corrispondenza di un corpo aggiunto in epoca successiva. La configurazione d'insieme appare decisamente eterogenea a frammentaria e riflette l'immagine delle modeste dimore contadine i cui elementi si creano o si sostituiscono nel tempo in base alle esigenze dei fruitori. La muratura portante è in pietrame del tipo a sacco e la copertura è del tipo a falde
- OGGETTO casa-isolata
- AMBITO CULTURALE Maestranze Ottocentesche
- LOCALIZZAZIONE Pesche (IS) - Molise , ITALIA
- INDIRIZZO Via Carbonara, Pesche (IS)
- TIPOLOGIA SCHEDA Architettura
-
CONDIZIONE GIURIDICA
proprietà privata
- CODICE DI CATALOGO NAZIONALE 1400075250
- ENTE COMPETENTE PER LA TUTELA Soprintendenza per i Beni Architettonici e Paesaggistici del Molise
- ENTE SCHEDATORE Soprintendenza per i Beni Architettonici e Paesaggistici del Molise
- DATA DI COMPILAZIONE 1982
-
DOCUMENTAZIONE ALLEGATA
scheda catalogo (1)
-
DOCUMENTAZIONE GRAFICA
planimetria catastale (1)
planimetria catastale (2)
planimetria catastale (3)
- LICENZA METADATI CC-BY 4.0