casa-rustica
Pesche,
post inizio XVIII - ante prima metà-XVIII
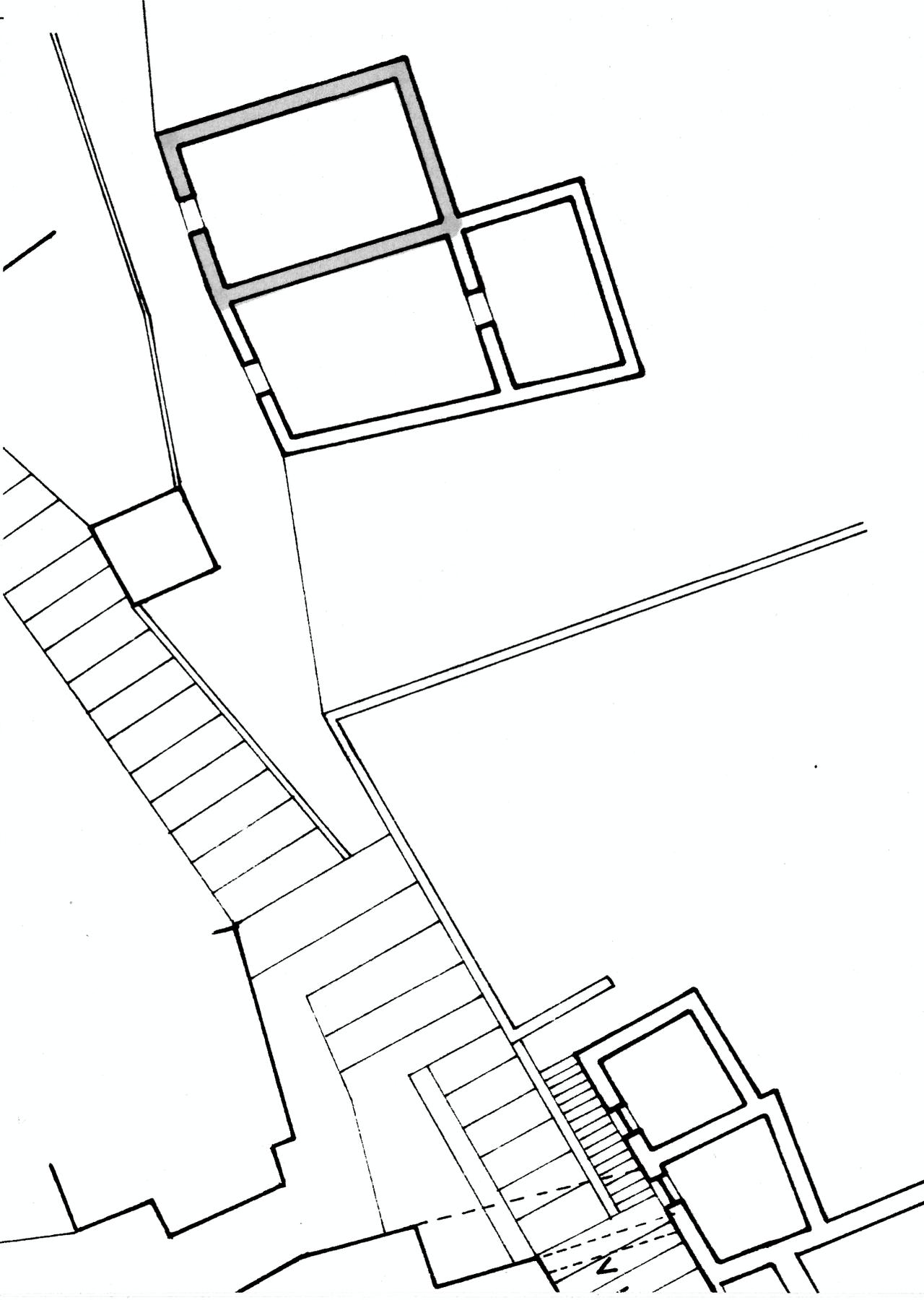
L'edificio presenta un impianto planimetrico pressoché rettangolare e si sviluppa su due livelli di piano, la struttura portante è in pietrame con blocchi squadrati agli spigoli. Il disimpegno verticale è affidato ad un rigido sentiero che si sviluppa lateralmente all'edificio, raggiungendo la quota del piano più alto. Le facciate sono prive di elementi significativi e rivelano il carattere sobrio degli edifici rurali. La copertura è ad una falda
- OGGETTO casa-rustica
- AMBITO CULTURALE Maestranze Settecentesche
- LOCALIZZAZIONE Pesche (IS) - Molise , ITALIA
- INDIRIZZO Via Carbonara, Pesche (IS)
- TIPOLOGIA SCHEDA Architettura
-
CONDIZIONE GIURIDICA
proprietà privata
- CODICE DI CATALOGO NAZIONALE 1400075234
- ENTE COMPETENTE PER LA TUTELA Soprintendenza per i Beni Architettonici e Paesaggistici del Molise
- ENTE SCHEDATORE Soprintendenza per i Beni Architettonici e Paesaggistici del Molise
- DATA DI COMPILAZIONE 1982
-
DOCUMENTAZIONE ALLEGATA
scheda catalogo (1)
-
DOCUMENTAZIONE GRAFICA
planimetria catastale (1)
planimetria catastale (2)
planimetria catastale (3)
- LICENZA METADATI CC-BY 4.0