Vaccareccia
Ripabottoni,
post seconda metà XIX - ante seconda metà-XIX
- OGGETTO casale-rurale
- AMBITO CULTURALE Maestranze Ottocentesche
- LOCALIZZAZIONE Ripabottoni (CB) - Molise , ITALIA
- INDIRIZZO Località Vaccareccia, Ripabottoni (CB)
- TIPOLOGIA SCHEDA Architettura
-
CONDIZIONE GIURIDICA
proprietà privata
- CODICE DI CATALOGO NAZIONALE 1400075178
- ENTE COMPETENTE PER LA TUTELA Soprintendenza per i Beni Architettonici e Paesaggistici del Molise
- ENTE SCHEDATORE Soprintendenza per i Beni Architettonici e Paesaggistici del Molise
- DATA DI COMPILAZIONE 2012
-
DATA DI AGGIORNAMENTO
2017
-
DOCUMENTAZIONE ALLEGATA
relazione tecnica (1)
-
DOCUMENTAZIONE GRAFICA
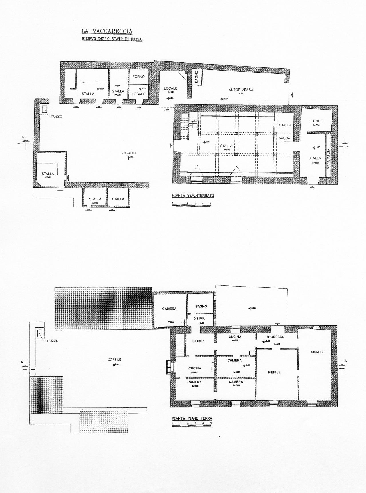
planimetria catastale (1)
planimetria catastale (2)
planimetria catastale (3)
planimetria catastale (4)
planimetria catastale (5)
- LICENZA METADATI CC-BY 4.0