caserma
Larino,
post fine IX - ante prima metà-XVII
- OGGETTO casa-a torre, con supportico
- AMBITO CULTURALE Maestranze Medioevali
- LOCALIZZAZIONE Larino (CB) - Molise , ITALIA
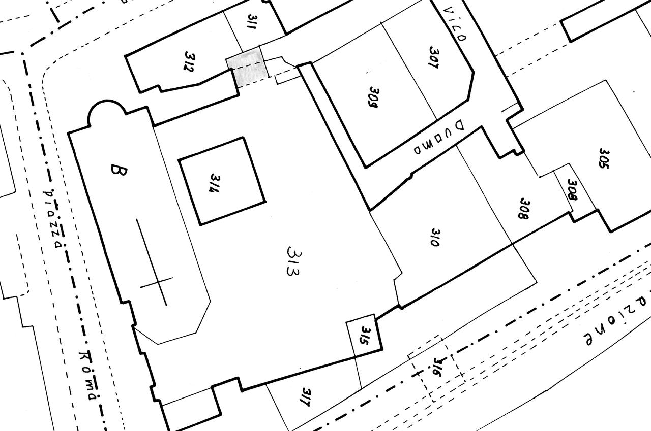
- INDIRIZZO Vico Caserma, Larino (CB)
- TIPOLOGIA SCHEDA Architettura
-
CONDIZIONE GIURIDICA
proprietà Ente pubblico territoriale
- CODICE DI CATALOGO NAZIONALE 1400040151
- ENTE COMPETENTE PER LA TUTELA Soprintendenza per i Beni Architettonici e Paesaggistici del Molise
- ENTE SCHEDATORE Soprintendenza per i Beni Architettonici e Paesaggistici del Molise
- DATA DI COMPILAZIONE 1994
-
DATA DI AGGIORNAMENTO
1995
2018
-
DOCUMENTAZIONE GRAFICA
planimetria catastale (1)
- LICENZA METADATI CC-BY 4.0