Casino del Barone
Duronia,
post seconda metà XIX - ante inizio-XX
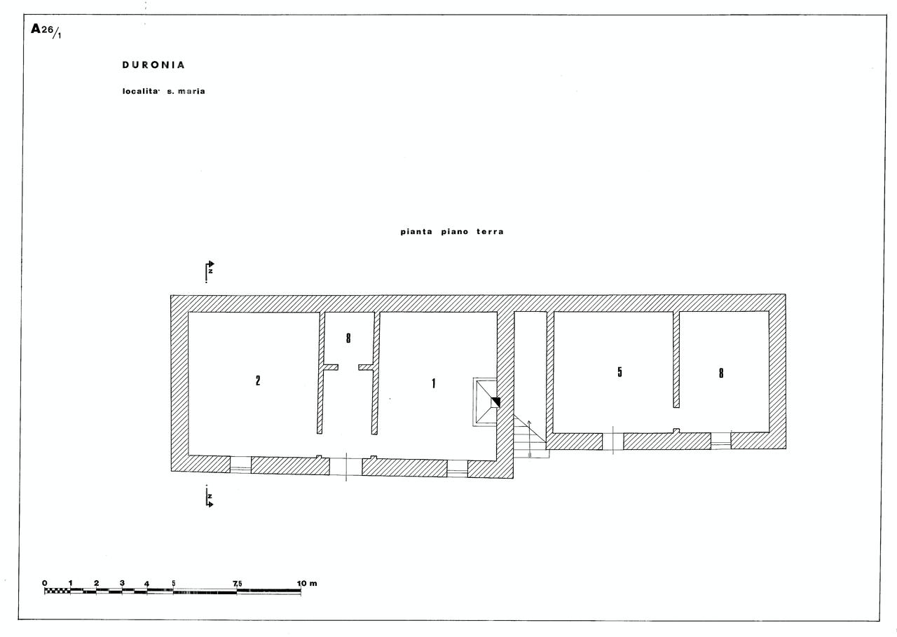
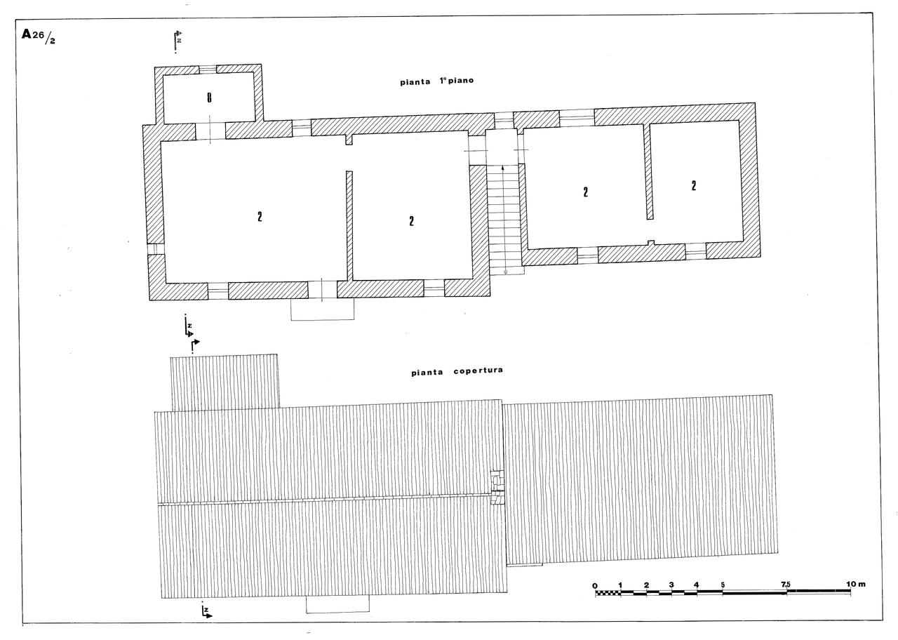
Edificio di forma rettangolare si eleva su due piani, la muratura perimetrale è in pietra intonacata; i solai al primo piano sono in parte in legno ed in parte in ferro e laterizio, mentre, al piano terra ci sono le volte. L’ingresso è segnato da un portale con arco a tutto sesto e stipiti in pietra locale; il cornicione è aggettante del tipo a romanella, la copertura a due falde con manto in coppi
- OGGETTO casino
- AMBITO CULTURALE Maestranze Ottocentesche
- LOCALIZZAZIONE Duronia (CB) - Molise , ITALIA
- INDIRIZZO strada provinciale per Frosolone, Duronia (CB)
- TIPOLOGIA SCHEDA Architettura
-
CONDIZIONE GIURIDICA
proprietà privata
- CODICE DI CATALOGO NAZIONALE 1400038287
- ENTE COMPETENTE PER LA TUTELA Soprintendenza per i Beni Architettonici e Paesaggistici del Molise
- ENTE SCHEDATORE Soprintendenza per i Beni Architettonici e Paesaggistici del Molise
- DATA DI COMPILAZIONE 1978
-
DATA DI AGGIORNAMENTO
1994
2018
-
DOCUMENTAZIONE ALLEGATA
scheda di catalogo (1)
scheda di catalogo (2)
-
DOCUMENTAZIONE GRAFICA
planimetria catastale (1)
planimetria catastale (2)
planimetria catastale (3)
planimetria catastale (4)
planimetria catastale (5)
planimetria catastale (6)
- LICENZA METADATI CC-BY 4.0