Museo Internazionale delle guerre mondiali
Rocchetta a Volturno,
- 2010/12/16 ante
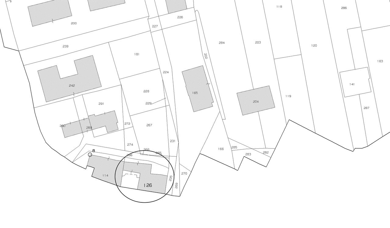
Attualmente i due edifici risultano accatastati: la particella 114 fabbricato rurale e la particella 126 abitazione di tipo rurale costituita da sei vani
- OGGETTO museo
- AMBITO CULTURALE Maestranze Ottocentesche Maestranze Locali
- LOCALIZZAZIONE Rocchetta a Volturno (IS) - Molise , ITALIA
- INDIRIZZO Via Roma, Rocchetta a Volturno (IS)
- TIPOLOGIA SCHEDA Architettura
-
CONDIZIONE GIURIDICA
proprietà privata
- CODICE DI CATALOGO NAZIONALE 1400018584
- ENTE COMPETENTE PER LA TUTELA Soprintendenza Archeologia, belle arti e paesaggio del Molise
- ENTE SCHEDATORE Soprintendenza per i Beni Architettonici e Paesaggistici del Molise
- DATA DI COMPILAZIONE 1994
-
DATA DI AGGIORNAMENTO
2018
-
DOCUMENTAZIONE GRAFICA
planimetria catastale (1)
- LICENZA METADATI CC-BY 4.0