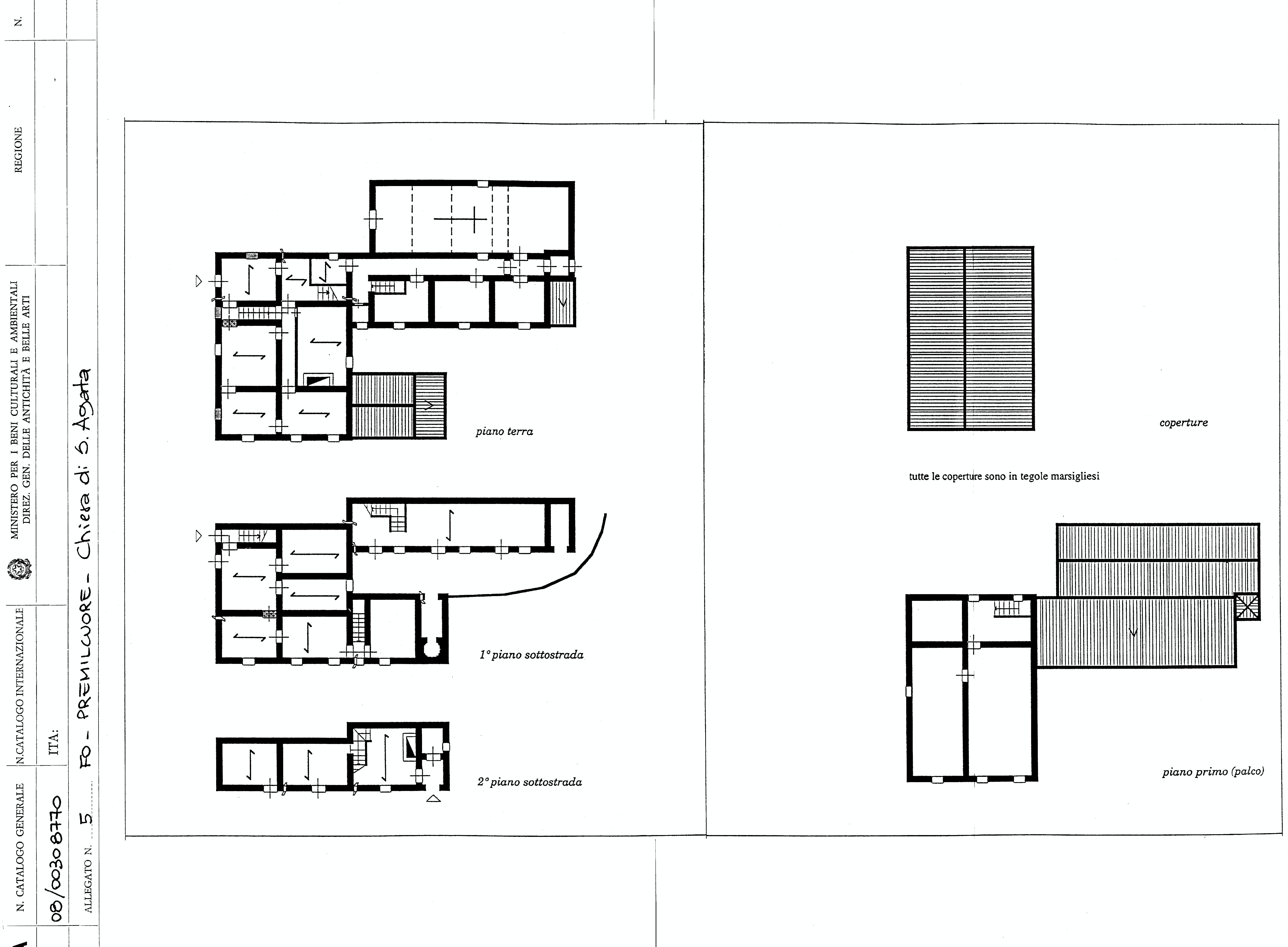
Chiesa di S. Agata
Premilcuore,
XVIII - XVIII
- OGGETTO chiesa
- AMBITO CULTURALE Architettura Settecentesca
-
ATTRIBUZIONI
Aleotti Gian Battista Detto L'argenta (riferimento Culturale): rifacimento
- LOCALIZZAZIONE Premilcuore (FC) - Emilia Romagna , ITALIA
- INDIRIZZO Via S. Agata, Premilcuore (FC)
- TIPOLOGIA SCHEDA Architettura
-
CONDIZIONE GIURIDICA
proprietà Ente religioso cattolico
- CODICE DI CATALOGO NAZIONALE 0800308770-bene individuo
- ENTE COMPETENTE PER LA TUTELA Soprintendenza Archeologia, belle arti e paesaggio per le province di Ravenna, Forlì-Cesena e Rimini
- ENTE SCHEDATORE Soprintendenza per i Beni Architettonici e Paesaggistici per le province di Ravenna Ferrara Forli'-Cesena e Rimini
- DATA DI COMPILAZIONE 1997
-
DATA DI AGGIORNAMENTO
2017
-
DOCUMENTAZIONE ALLEGATA
scheda catalografica (1)
-
DOCUMENTAZIONE GRAFICA
riproduzione mappa catastale (1)
riproduzione mappa catastale (2)
- LICENZA METADATI CC-BY 4.0