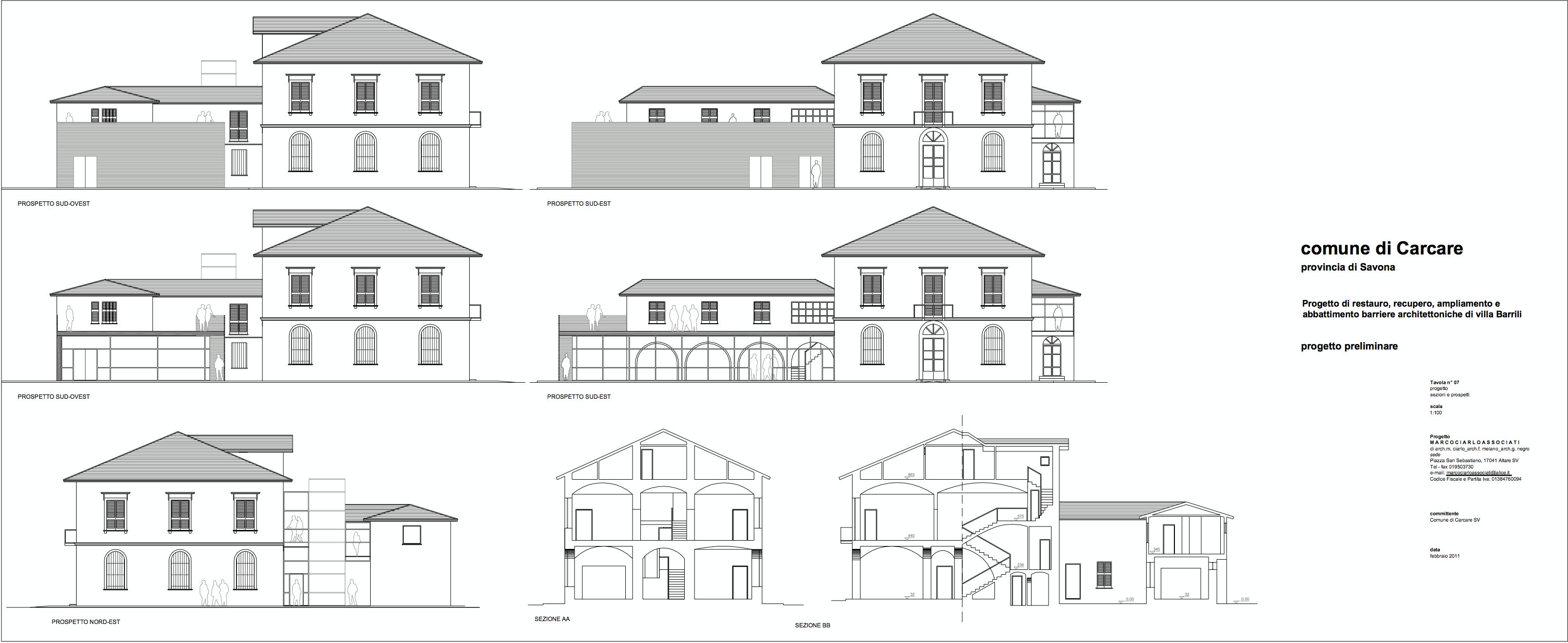
Villa Maura
Carcare,
anni '80 - 1885 ante
Anton Giulio Barrili (1836-1908)
1836-1908
- OGGETTO villa-pubblica
- AMBITO CULTURALE Maestranze Locali
-
ATTRIBUZIONI
Anton Giulio Barrili (1836-1908): Progetto / direzione lavori
- LOCALIZZAZIONE Carcare (SV) - Liguria , ITALIA
- INDIRIZZO Via Anton Giulio Barrili, 12, Carcare (SV)
- TIPOLOGIA SCHEDA Architettura
-
CONDIZIONE GIURIDICA
proprietà Ente pubblico territoriale
- CODICE DI CATALOGO NAZIONALE 0700111313
- ENTE COMPETENTE PER LA TUTELA Soprintendenza Archeologia Belle Arti e Paesaggio per le province di Imperia e Savona
- ENTE SCHEDATORE Soprintendenza per i Beni Architettonici e Paesaggistici della Liguria
- DATA DI COMPILAZIONE 1994
-
DATA DI AGGIORNAMENTO
2015
-
DOCUMENTAZIONE ALLEGATA
copia del provvedimento di tutela (1)
copia del provvedimento di tutela (2)
copia del provvedimento di tutela (3)
-
DOCUMENTAZIONE GRAFICA
estratto di mappa catastale (1)
estratto di mappa catastale (2)
estratto di mappa catastale (3)
estratto di mappa catastale (4)
estratto di mappa catastale (5)
estratto di mappa catastale (6)
estratto di mappa catastale (7)
- LICENZA METADATI CC-BY 4.0