Sito in contrada Crivo (insediamento insediamento sparso)
Parghelia,
XII - XIII
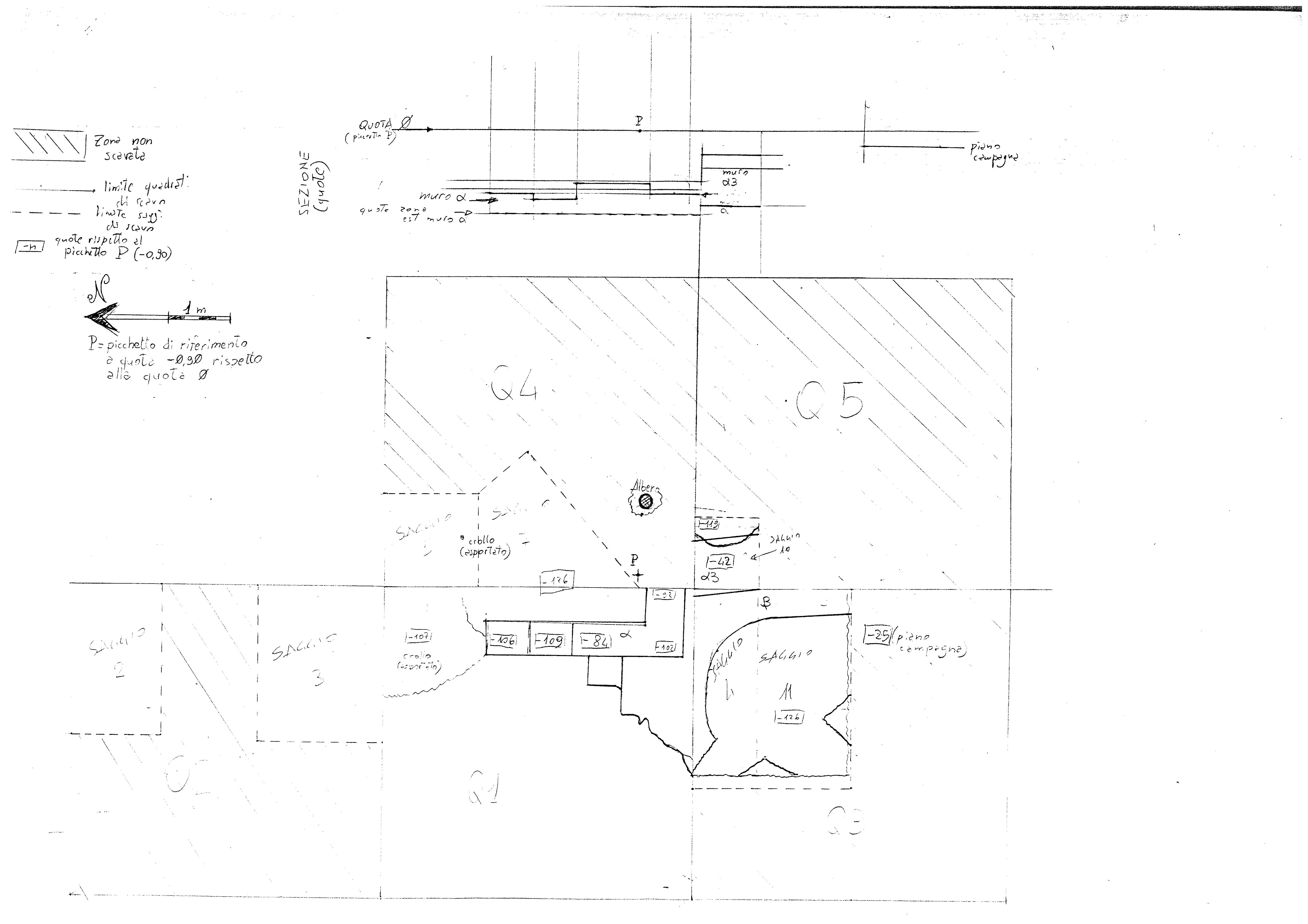
Resti di strutture murarie, in parte relativi a vani di un edificio, con battuto caratterizzato da ampie tracce di bruciato e ampio strato di crollo, pertinenti un insediamento inquadrabile tra il XII e il XIII secolo d.C
- OGGETTO insediamento insediamento sparso
- AMBITO CULTURALE Ambito Bassomedievale
- LOCALIZZAZIONE Parghelia (VV) - Calabria , ITALIA
- INDIRIZZO Ex SS 522, Parghelia (VV)
- NOTIZIE STORICO CRITICHE La contrada Crivo è nota per i resti di strutture di una villa di età romana, con resti di mosaici policromi, e un impianto artigianale per la produzione del vetro ascrivibile ad età tardoantica
- TIPOLOGIA SCHEDA Siti archeologici
- INTERPRETAZIONE Le indagini archeologiche hanno permesso di raccogliere una serie di dati (in particolare numerosi frammenti vitrei e laterizi, ma soprattutto alcuni frammenti di ceramica decorata a bande e spirali rosse, databile al XII-XIII secolo d.C.), che hanno consentito di inquadrare cronologicamente le strutture affiorate (resti di insediamento sparso Bassomedievale) e di valutarne l'interesse documentario per la storia del territorio
-
CONDIZIONE GIURIDICA
proprietà privata
- CODICE DI CATALOGO NAZIONALE 1800167741
- ENTE COMPETENTE PER LA TUTELA Soprintendenza Archeologia, belle arti e paesaggio per la citta' metropolitana di Reggio Calabria e la provincia di Vibo Valentia
- ENTE SCHEDATORE Soprintendenza Archeologia, belle arti e paesaggio per la citta' metropolitana di Reggio Calabria e la provincia di Vibo Valentia
- DATA DI COMPILAZIONE 1995
-
DATA DI AGGIORNAMENTO
2020
-
DOCUMENTAZIONE ALLEGATA
scheda cartacea (1)
-
DOCUMENTAZIONE GRAFICA
rilievo stratigrafico (1)
rilievo stratigrafico (2)
- LICENZA METADATI CC-BY 4.0