Tempio di Castel di Ieri (tempio, strutture per il culto)

Castel di Ieri, post 200 a.C - ante 1 a.C

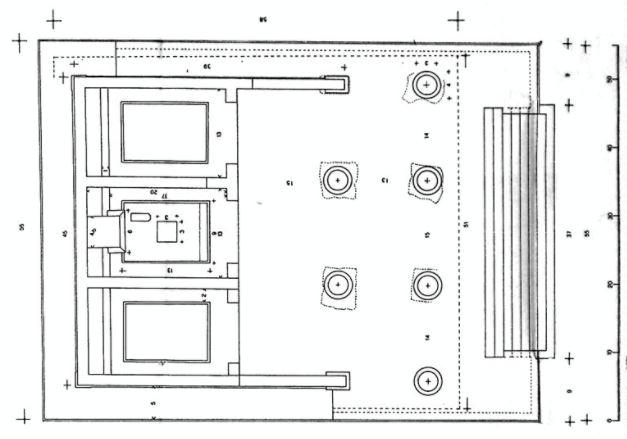
Tempio su alto podio realizzato in opera poligonale, rivestito da lastre di calcare tra due cornici modanate. Frontalmente è un’ampia gradinata che immetteva nella cella tripartita attraverso un profondo pronao costituito da quattro colonne ioniche, con, in seconda fila, due colonne centrali poste all’incrocio dei due assi dei muri interni con i muri esterni delle celle laterali. La cella è risultata suddivisa in tre vani delle medesime dimensioni; attualmente dell’alzato rimane solamente un filare di blocchi in opera quadrata con rivestimento in intonaci policromi all’interno e acromi all’esterno. Tutti e tre gli ambienti presentano un pavimento musivo e, nella parte posteriore, piccoli vani, profondi 60 cm, provvisti di soglia in pietra e chiusi da cancellate, che dovevano servire a custodire gli oggetti di culto o gli archivi e il tesoro della comunità. Nella cella centrale il basamento per la statua obliterava il piccolo ambiente retrostante. Sempre nella cella centrale il pavimento reca un’iscrizione (m 2.41 x 0.315) che ricorda i magistrati che curarono il restauro dell’edificio; l’iscrizione è realizzata, su fondo bianco, con tessere nere di modulo maggiore rispetto a quelle usate per realizzare il resto della pavimentazione. Sono stati rinvenuti anche frammenti della probabile statua di culto in marmo bianco, bronzetti votivi, tra i quali una figura di Ercole, e resti di una scultura che ritrae un leone

  • OGGETTO tempio
  • CLASSIFICAZIONE strutture per il culto
  • LOCALIZZAZIONE Castel di Ieri (AQ) - Abruzzo , ITALIA
  • INDIRIZZO Claudia Nova, Castel di Ieri (AQ)
  • NOTIZIE STORICO CRITICHE I resti si trovano ai piedi di una parete rocciosa dove, nel passato, era presente una sorgente. Le strutture sorgono su un terreno sedimentale compatto di orgine lacustre, sormontato da un piccolo strato ghiaioso su cui si alternano strati sedimentali e strati ghiaiosi, a testimonianza che su questo sito si sono alternati più eventi alluvionali di notevole entità. Ad un livello di circa 2 metri al di sotto del tempio gli archeologi hanno individuato un altro edificio templare databile al IV a.C. con zoccolo in pietra e tetto ornato da decorazione fittile. Eretto su un basamento di 12x12 m, la struttura è costituita da un’unica cella fiancheggiata da due alae uguali in larghezza, che si prolungano sino alla fronte scandita da due colonne, il piano del pronao e delle alae era costituito da un cementizio a base fittile con inserti di tessere musive. Durante la primavera del 2010, ripresi gli scavi, sono state scoperte, a una distanza di circa tre metri dall’edificio di culto e a circa cinque metri di profondità rispetto al tempio più recente cinque tombe
  • TIPOLOGIA SCHEDA Monumenti archeologici
  • SPECIFICHE DI REPERIMENTO Il ritrovamento casuale di alcune lastre modanate, durante la realizzazione di un capannone agricolo, ha condotto al rinvenimento del tempio, scavato nel 1987 dalla Soprintendenza per i beni archeologici dell'Abruzzo
  • CONDIZIONE GIURIDICA proprietà Stato
  • CODICE DI CATALOGO NAZIONALE 1300301026
  • ENTE COMPETENTE PER LA TUTELA Soprintendenza Archeologia, belle arti e paesaggio dell'Abruzzo con esclusione della citta' dell'Aquila e dei comuni del cratere
  • ENTE SCHEDATORE Soprintendenza Archeologia, belle arti e paesaggio dell'Abruzzo con esclusione della citta' dell'Aquila e dei comuni del cratere
  • DATA DI COMPILAZIONE 2018
  • ISCRIZIONI cella centrale, pavimento - C(aius) [Vib]IDIVS C(ai) F(ilius) SER(gia) DECR(ianus), L(ucius) P[eti]EDIVS V(ibi) [f(ilius)] [ae]DE(m) FAC(iendam) EX PAG(i) DE[cr(eto)] C(uraverunt) EID(em)Q(ue) [p(robaverunt)] - capitale - a tessere - latino
  • DOCUMENTAZIONE GRAFICA planimetria (1)
  • LICENZA METADATI CC-BY 4.0

ALTRE OPERE DELLO STESSO PERIODO - post 200 a.C - ante 1 a.C

ALTRE OPERE DELLA STESSA CITTA'