del Ninfeo, ambienti repubblicani (domus, struttura abitativa)
Bolsena,
Età Repubblicana - Età Imperiale
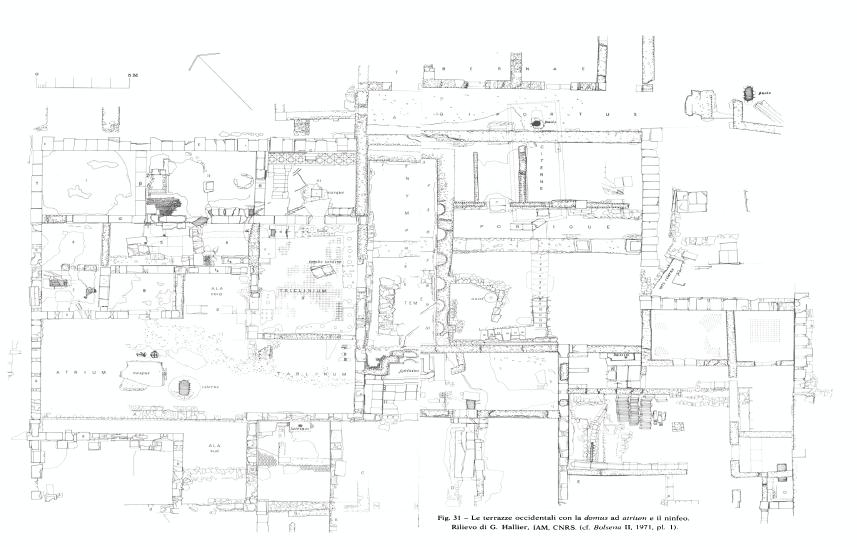
Inglobati nella domus del Ninfeo, nella porzione settentrionale del complesso sono tre vani con murature in opera quadrata. Il vano centrale, pavimentato in opus signinum (II), era privo di copertura ed ospitò in una fase successiva alla sua creazione un dolio. Una funzione analoga a servizio era assolta dal vano III, in seguito trasformato in atriolum ed annesso, quindi, alla serie di ambienti di rappresentanza della domus
- OGGETTO domus
-
CLASSIFICAZIONE
struttura abitativa
- LOCALIZZAZIONE Bolsena (VT) - Lazio , ITALIA
- INDIRIZZO VIA FRANCESCO Cozza, Bolsena (VT)
- TIPOLOGIA SCHEDA Monumenti archeologici
-
CONDIZIONE GIURIDICA
proprietà Stato
- CODICE DI CATALOGO NAZIONALE 1201339456-1201339456 - 3
- ENTE COMPETENTE PER LA TUTELA Soprintendenza Archeologia, belle arti e paesaggio per l’area metropolitana di Roma, la provincia di Viterbo e l’Etruria meridionale
- ENTE SCHEDATORE Soprintendenza Archeologia, belle arti e paesaggio per l’area metropolitana di Roma, la provincia di Viterbo e l’Etruria meridionale
- DATA DI COMPILAZIONE 2017
-
DOCUMENTAZIONE ALLEGATA
decreto di vincolo (1)
-
DOCUMENTAZIONE GRAFICA
Rilievo (1)
Rilievo (2)
- LICENZA METADATI CC-BY 4.0