M. Rosello t.2 (tomba a camera)
Sorano,
VII-VI a.C
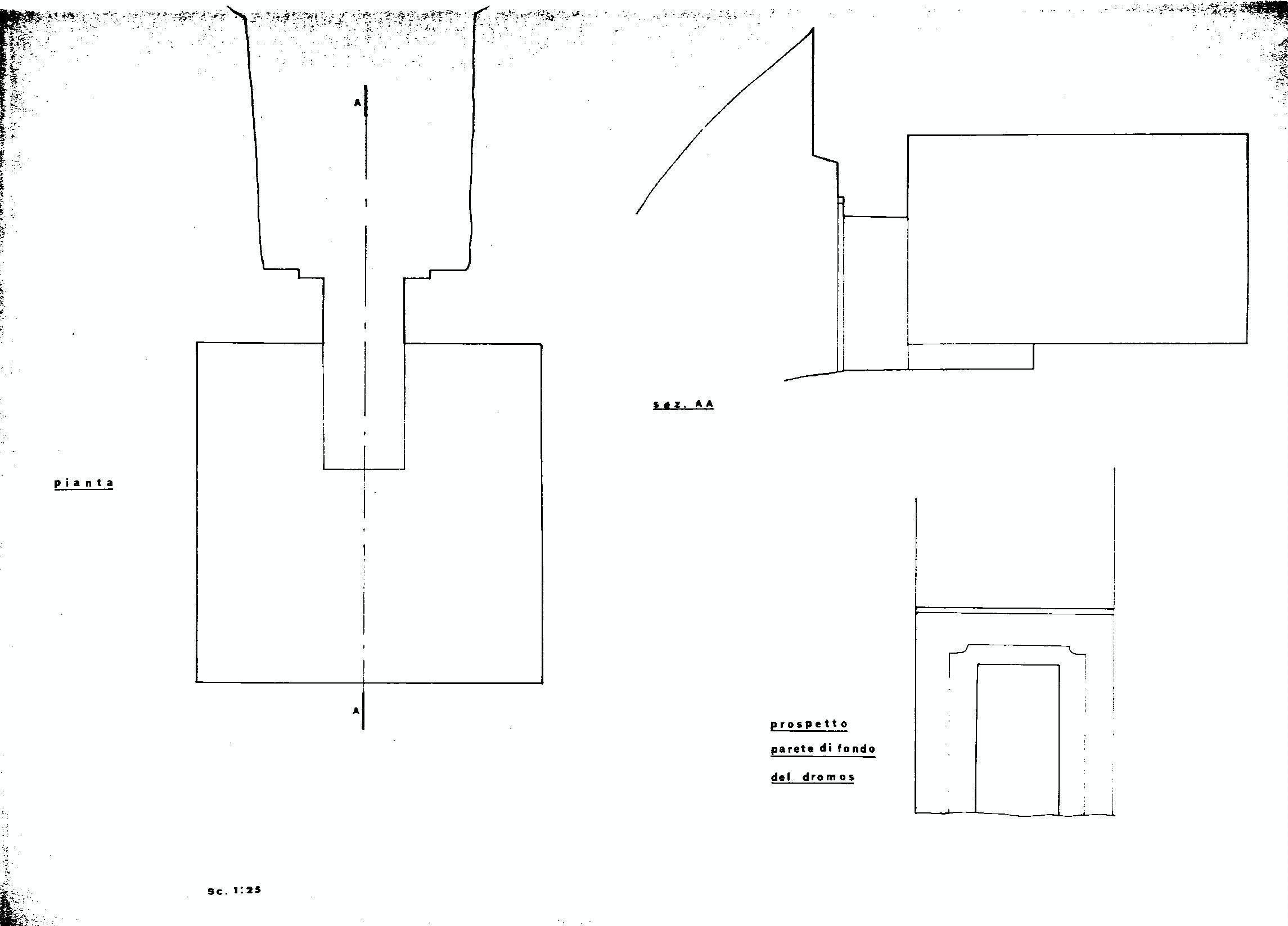
Scolpita. Ingresso rettangolare aprentesi al fondo di un largo dromos, le cui pareti laterali sono conservate per una lunghezza di cm.200 circa. L'ingresso è inquadrato da un largo pianetto ribassato (profondo cm.5), decorato agli angoli da due elementi sagomati. Al di sopra dell'ingresso, una seconda cornice, maggiormente aggettante (cm.20 circa), si estende orizzontalmente per tutta la larghezza della parete di fondo del dromos. Superiormente la parete è spianata per un'altezza di cm.130 circa. Cella rettangolare, lunga cm.270, larga cm.275, alta cm.187, fornita su tre lati di banchine bassissime (solo cm.20) ed estremamente larghe (cm.110 a sinistra, cm.100 a destra; cm.170 sul fondo)
- OGGETTO tomba a camera
- LOCALIZZAZIONE Sorano (GR) - Toscana , ITALIA
- TIPOLOGIA SCHEDA Monumenti archeologici
-
CONDIZIONE GIURIDICA
proprietà privata
- CODICE DI CATALOGO NAZIONALE 0900023970
- ENTE COMPETENTE PER LA TUTELA Soprintendenza Archeologia, belle arti e paesaggio per le province di Siena, Grosseto e Arezzo
- ENTE SCHEDATORE Soprintendenza Archeologia, belle arti e paesaggio per le province di Siena, Grosseto e Arezzo
- DATA DI COMPILAZIONE 1974
-
DOCUMENTAZIONE ALLEGATA
scheda di catalogo cartacea (1)
-
DOCUMENTAZIONE GRAFICA
prospetto/ profilo/ pianta (1)
- LICENZA METADATI CC-BY 4.0